Kelleher Real Estate

A strong foundation is the key to any good home. It’s no different with Kelleher. With over 20 years of experience across commercial, investment and residential real estate in Christchurch, we offer the best advice during every stage of your property journey.

Real Estate Agents

Kelleher Real Estate
Kelleher Real Estate
209 Salisbury Street
Christchurch Central
Christchurch 8013
Listing #:
eagle_1742368
Listed:
7 days ago

$570,000

Sun-Filled Single-Level Living

2/69 Suva Street, Upper Riccarton, Canterbury
Apartment
bedroom
2 Bedrooms
bathroom
2 Bathrooms
livingroom
1 Living Room
carparkoffstreet
1 Offstreet Car Park
floorarea
81m2 Floor Area
About this property
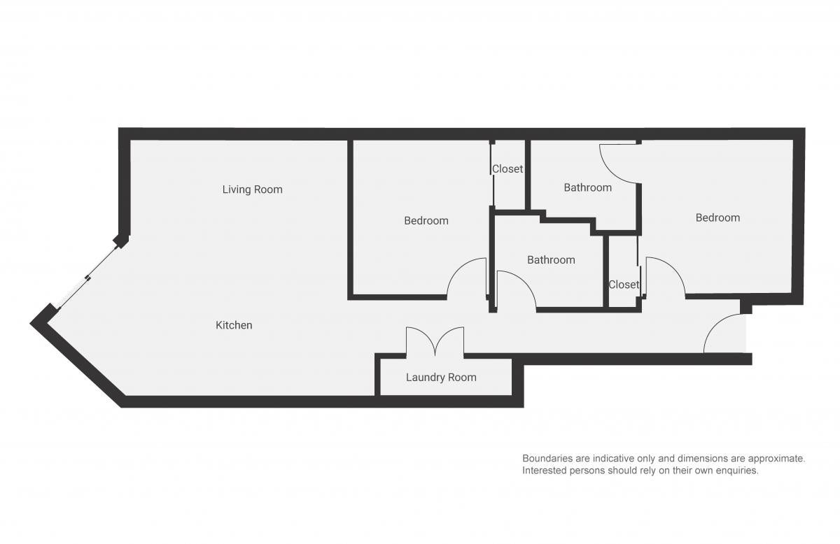
This single-level apartment offers a well-balanced layout with two bedrooms and two bathrooms, designed to make the most of natural light and outdoor connection. The west-facing courtyard opens directly to the street through its own private gate, providing easy access and a sunny outdoor space.

Inside, the open-plan kitchen, dining and living area forms the centre of the home and receives strong afternoon sun. A distinctive layout allows natural light to reach the central bedroom through internal windows, helping keep the middle of the apartment bright throughout the day. The master bedroom includes its own fully appointed ensuite, while a second bathroom services the rest of the home. A wood-finished kitchen pairs neatly with timber flooring, creating a cohesive and modern interior.

The property sits within a gated complex and includes one allocated gated car park, along with a secure bike storage station for residents.

Positioned in Upper Riccarton, the apartment borders a dedicated cycle lane providing a direct route to both the Christchurch central city and the University of Canterbury. Church Corner and Bush Inn shopping centres are both within easy walking distance, offering supermarkets, restaurants and everyday services. Middleton Grange School sits directly across the road, adding further convenience to this well-connected location.

Download the property files instantly via www.kelleher.co.nz... or enquire here to receive the link directly.

Sun 29th Mar 2:30pm ~ 3:00pm

Sun 5th Apr 2:30pm ~ 3:00pm

Check out whether you can get fibre internet
Meet your new neighbours on Neighbourly