Kelleher Real Estate

A strong foundation is the key to any good home. It’s no different with Kelleher. With over 20 years of experience across commercial, investment and residential real estate in Christchurch, we offer the best advice during every stage of your property journey.

Real Estate Agents

Kelleher Real Estate
Kelleher Real Estate
209 Salisbury Street
Christchurch Central
Christchurch 8013
Listing #:
eagle_1607362
Listed:
167 days ago

Price by Negotiation

Completion Weeks Away

302 Cannon Hill Crescent, Mount Pleasant, Canterbury
Residential House
bedroom
4 Bedrooms
bathroom
2 Bathrooms
carparkgarage
2 Car Garages
floorarea
232m2 Floor Area
landarea
478m2 Land Area
About this property
Private Viewings Now Available.

The last remaining of two new architecturally designed homes by M2 Architecture, with a completion estimated for Estimated 31 March Completion. This home offers elevated family living with views stretching from the city to the Southern Alps. North-facing and set across two levels, it is designed for both comfort and style in a sought-after Mt Pleasant position.

Clad in vertical cedar weatherboards and finished with Colorsteel roofing, colour-matched half-round spouting and downpipes, the exterior is clean, modern, and built to last. Inside, high-quality fixtures and fittings have been carefully selected to match the exceptional design standard throughout.

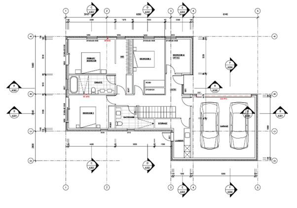
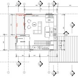
Downstairs, there are four bedrooms including a generous master with walk-in wardrobe and ensuite. A second full bathroom provides functionality for families and guests. The double internal-access garage adds convenience, with good storage throughout.

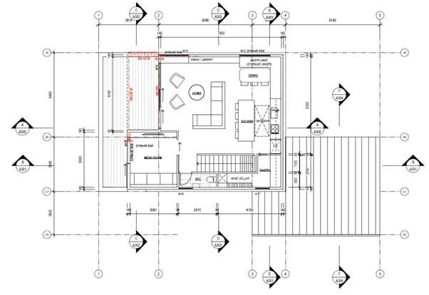
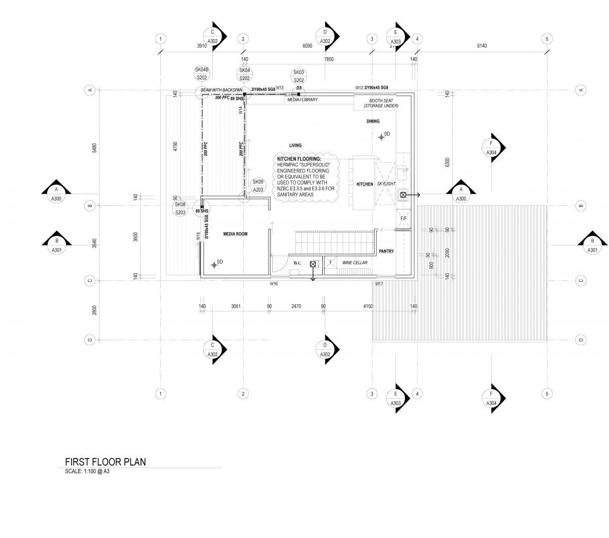
Upstairs, the open-plan kitchen, living, and dining area takes full advantage of the sweeping views. The kitchen includes a walk-in pantry and a dedicated wine cellar. A separate media room offers flexibility for family movie nights or quiet retreats. A large northwest-facing deck extends from the living space, with a cantilevered roof providing year-round usability and shelter from the elements.

Located just over the fence from Mt Pleasant School, school drop-offs are quick and easy. Down the hill, Ferrymead offers everyday essentials, and Sumner Beach is only minutes away for summer swims, surf lessons, or fish and chips by the sea.

Thoughtfully designed and built to a high standard, this is hillside living done right.

Download property files instantly at www.kelleher.co.nz...

*Images of similar neighbouring build and renders are artist impressions only - estimated completion April 2026

Sun 29th Mar 11:00am ~ 11:30am

Check out whether you can get fibre internet
Meet your new neighbours on Neighbourly