Alison Weakley Real Estate

Based at Ray White Manukau Alison has sold 825 homes worth over 1 Billion in a real estate career spanning 21 years. Her tenacious spirit and unwavering commitment to her clients have earned her an impressive reputation in the industry - Alison is your go-to agent when you want results.Equipped with a university degree in psychology Alison is exceptionally good at reading people whether its assessing their needs or negotiating with potential buyers. Add that to her huge database of buyers and sellers amassed over more than two decades enables her to get you the best result for your property.Alisons clients praise her candid, no nonsense approach to selling real estate. Rising to every challenge with ease, her cool head and great instincts ensures she not only gets the job done- she exceeds her clients expectations every time.So if you are looking for a top South Auckland agent to trust with your most valuable asses - Alison is your perfect real estate match.

Real Estate Agents

Alison Weakley Real Estate
603 Great South Road
Manukau
Auckland 2104
Ray White Manukau
603 Great South Road
Manukau City Centre
Auckland 2104
Listing #:
MKU48349
Listed:
11 days ago

Price by Negotiation

Brand New And Just Completed

Lot 3/13 Hilda Road, Mangere, Manukau City
Residential House
bedroom
4 Bedrooms
bathroom
2 Bathrooms
ensuite
1 Ensuite
carparkgarage
1 Car Garage
floorarea
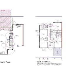
132m2 Floor Area
landarea
144m2 Land Area
About this property
Presenting a brand new 2 storey duplex style home situated on FREEHOLD land, that's ready and waiting for you.

With 4 double bedrooms plus a separate study room, this home is perfect for anyone looking for comfort and space.

Step inside to discover a stylish new kitchen with open plan living, ideal for entertaining or enjoying family time. The private outdoor decked area is perfect for morning coffees or relaxing in the afternoon sun. And you also have the convenience of a guest toilet and internal access garaging also on the ground floor.

The upper floor boasts four double bedrooms, perfect for those "I need my space moments" and a separate study is perfect for the home office. The master bedroom comes with an ensuite and walk in wardrobe and both bathrooms are fully tiled, adding a touch of luxury to your daily routine.

Extras? We've got those covered too. Enjoy the comfort of a heat pump, gas cooking, double glazing for energy efficiency, gas hot water for continuos hot water, modern laminate flooring throughout the main living areas and an automatic garage door opener for ease of access.

Located in a quiet no exit street, this home is well located, within easy access to the motorway on-ramps and nearby local amenities.

Open Homes:
Saturday 21st March 3:00pm - 3:30pm
Sunday 22nd March 10:00am - 10:30am
Or view anytime by appointment.

Disclaimer - This property is being sold without a price and therefore a price guide
can not be provided. The website may have filtered the property into a price bracket for website functionality purposes. All prospective purchasers shall complete their own due diligence, seek legal and expert advice, and satisfy themselves with respect to information supplied during the marketing of this property, including but not limited to: the floor and land sizes, boundary lines, underground services, along with any scheme plans or consents.

Sat 28th Mar 3:00pm ~ 3:30pm

Sun 29th Mar 10:00am ~ 10:30am

Check out whether you can get fibre internet
Meet your new neighbours on Neighbourly