Alison Weakley Real Estate

Based at Ray White Manukau Alison has sold 825 homes worth over 1 Billion in a real estate career spanning 21 years. Her tenacious spirit and unwavering commitment to her clients have earned her an impressive reputation in the industry - Alison is your go-to agent when you want results.Equipped with a university degree in psychology Alison is exceptionally good at reading people whether its assessing their needs or negotiating with potential buyers. Add that to her huge database of buyers and sellers amassed over more than two decades enables her to get you the best result for your property.Alisons clients praise her candid, no nonsense approach to selling real estate. Rising to every challenge with ease, her cool head and great instincts ensures she not only gets the job done- she exceeds her clients expectations every time.So if you are looking for a top South Auckland agent to trust with your most valuable asses - Alison is your perfect real estate match.

Real Estate Agents

Alison Weakley Real Estate
603 Great South Road
Manukau
Auckland 2104
Ray White Manukau
603 Great South Road
Manukau City Centre
Auckland 2104
Listing #:
MKU48347
Listed:
11 days ago

Price by Negotiation

Easy Living In Your Brand New Home

Lot 1/13 Hilda Road, Mangere, Manukau City
Residential House
bedroom
4 Bedrooms
bathroom
2 Bathrooms
ensuite
1 Ensuite
carparkgarage
1 Car Garage
carparkoffstreet
1 Offstreet Car Park
floorarea
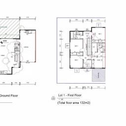
132m2 Floor Area
landarea
178m2 Land Area
About this property
Welcome to your brand new home - a road frontage FREEHOLD duplex style home with lot's of room!

Spanning a spacious floor area of 132m2 (approx) spread over two levels, its the perfect place for you to call home.

Ground floor features:
Step into a chic open plan living area that opens up via ranch slider to a private decked outdoor space, perfect for those summer BBQ's or chilling out after a hard days work. Need storage for your car? We've go you covered with the single internal access garage. Plus there is a separate downstairs toilet, making life easier for your guests.

Upstairs awesomeness:
Four double bedrooms await you on the top floor. The master features an ensuite bathroom and walk in wardrobe offering plenty of space for your closet dreams and there's also a separate study room - perfect for those work from home days or for the kids to do their homework.

Perks galore:
Cook like a chef with gas cooking, enjoy the quietness of double glazing and enjoy the benefits of a new heat pump and auto garage door opener. The main living area features low maintenance laminate flooring - great if you have kids or pets, and with two spacious fully tiled bathrooms with heated towel rails and extractor fans you'll be singing in the shower in no time!

Located in a quiet no exit street, this home is perfectly situated near the Airport, Otahuhu, Mangere Bridge and Onehunga and is an excellent option for buyers looking for a low maintenance life (less lawn mowing, more living!).

Open Homes:
Saturday 21st March 3:00pm - 3:30pm
Sunday 22nd March 10:00am - 10:30am
Or view anytime by appointment.

Disclaimer - This property is being sold without a price and therefore a price guide can not be provided. The website may have filtered the property into a price bracket for website functionality purposes. All prospective purchasers shall complete their own due diligence, seek legal and expert advice, and satisfy themselves with respect to information supplied during the marketing of this property, including but not limited to: the floor and land sizes, boundary lines, underground services, along with any scheme plans or consents.

Sat 28th Mar 3:00pm ~ 3:30pm

Sun 29th Mar 10:00am ~ 10:30am

Check out whether you can get fibre internet
Meet your new neighbours on Neighbourly