Ray White Howick

Ray White provides a broad range of real estate services from selling your property to property management. Visit our website to see over 12,000 properties on display.

We are a family owned business. When you choose Ray White, you are choosing over 100 years of experience and a name you can trust. We guarantee it!

Contact us to find out how Ray White can help you when it comes to property.

Ray White Howick
Mountfort Estate Agents Ltd Licensed (REAA 2008)

Real Estate Agents

Ray White Howick
Ray White Howick
12 Uxbridge Road
Mellons Bay
Auckland 2014
Listing #:
HOW44200
Listed:
14 days ago

Auction (unless sold prior)

Tue 31st Mar 6:00pm

Walk to the Village, Love Where You Live

2/30 Howe Street, Howick, Manukau City
Residential House
bedroom
3 Bedrooms
bathroom
1 Bathroom
carparkcovered
2 Covered Car Parks
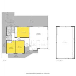
About this property
Positioned to embrace the best of Howick's village lifestyle, this residence offers an effortless blend of comfort, style and location. Beautifully maintained, it offers an inviting sense of calm from the moment you arrive.

A modern kitchen with engineered stone surfaces anchors the home, connecting seamlessly to the open plan living and dining area. Clean lines and natural light define the space, while sliding doors extend to a generous sunlit deck, creating a fluid indoor/outdoor connection and an setting for entertaining all year round.

Three generously sized bedrooms are complemented by a family bathroom and separate laundry. Outdoors, the easy care grounds and charming playhouse enhance the appeal of the fully fenced backyard, creating a secure and inviting space for children to play. A sizeable double carport with additional workshop space completes the home, adding flexibility and functionality.

An easy stroll leads to the heart of Howick Village, including a variety of shops, cafes, restaurants, and Saturday markets. Nearby beaches, the Domain and coastal walkways enrich the lifestyle further, while quality school zones include Owairoa Primary School, Howick Intermediate and Howick College.

With the owners now relocating out of Auckland, this is a compelling opportunity to secure a family home in a location that continues to stand the test of time.

Sat 28th Mar 12:30pm ~ 1:00pm

Sun 29th Mar 12:30pm ~ 1:00pm

Check out whether you can get fibre internet
Meet your new neighbours on Neighbourly