Ray White Howick

Ray White provides a broad range of real estate services from selling your property to property management. Visit our website to see over 12,000 properties on display.

We are a family owned business. When you choose Ray White, you are choosing over 100 years of experience and a name you can trust. We guarantee it!

Contact us to find out how Ray White can help you when it comes to property.

Ray White Howick
Mountfort Estate Agents Ltd Licensed (REAA 2008)

Real Estate Agents

Ray White Howick
Ray White Howick
12 Uxbridge Road
Mellons Bay
Auckland 2014
Listing #:
HOW44975
Listed:
14 days ago

Auction (unless sold prior)

Tue 31st Mar 6:00pm

Endless Potential - Ignore CV

18 La Perouse Street, Botany Downs, Manukau City
Residential House
bedroom
3 Bedrooms
bathroom
1 Bathroom
toilet
1 Toilet
carparkcovered
2 Covered Car Parks
landarea
373m2 Land Area
About this property
Single level brick and tile homes remain sought after, and for good reason. Set on a freehold site and thoughtfully positioned, this classic residence presents an exciting opportunity to secure a property you can truly make your own.

Framed by a charming picket fence, the front yard offers space to kick a ball, soak up the sun, or create your own veggie garden.

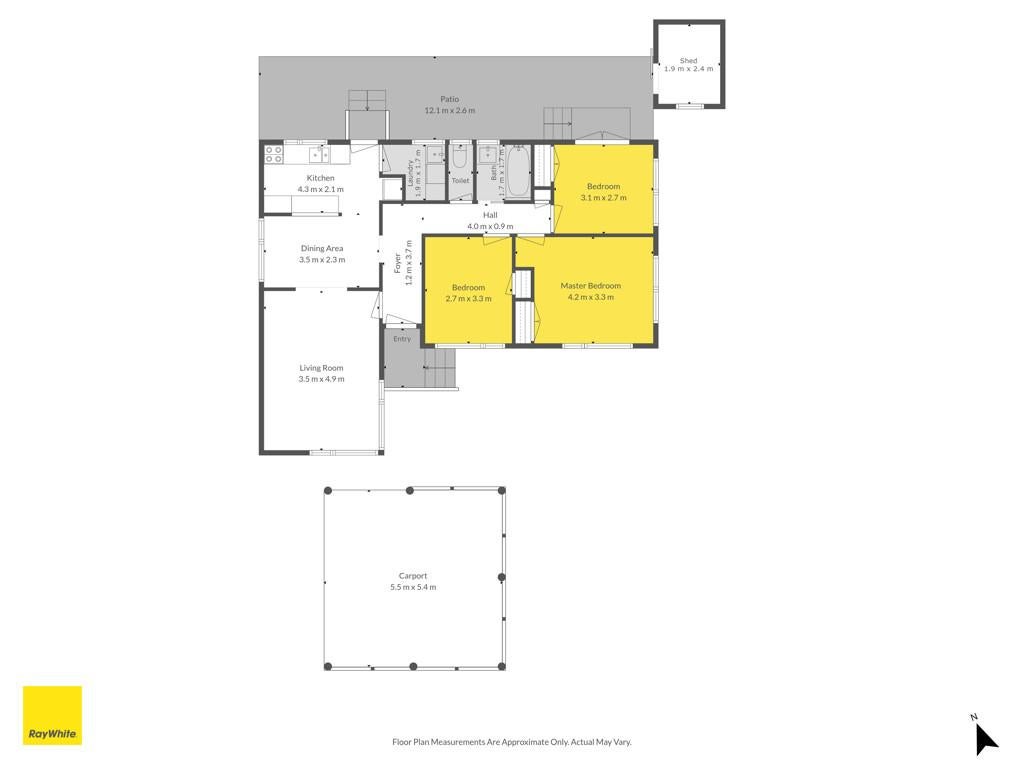
Inside, the layout is practical and family friendly, featuring three generously sized bedrooms, including one with ranchslider access to a sun-drenched, fully fenced patio; ideal for those working from home. A spacious lounge flows through to a separate dining area, while the centrally positioned kitchen is both functional and well connected. A family bathroom with separate toilet, dedicated laundry and double carport complete the package.

School zones include Botany Downs School, Howick Intermediate and Howick College. The Cascade Walkway and New World are within walking distance, and Howick Village is just a short drive away for cafés, restaurants, shops and weekend markets.

Homes of this nature remain firmly in demand. Offering space, convenience and genuine potential, this is your opportunity to secure a home in a popular location.

Sat 28th Mar 1:30pm ~ 2:00pm

Sun 29th Mar 1:30pm ~ 2:00pm

Check out whether you can get fibre internet
Meet your new neighbours on Neighbourly