Ray White Albany - Realty Insight

Ray White provides a broad range of real estate services from selling your property to property management. Visit our website to see over 12,000 properties on display.

We are a family owned business. When you choose Ray White, you are choosing over 100 years of experience and a name you can trust. We guarantee it!

Contact us to find out how Ray White can help you when it comes to property.

Ray White Albany
Ideal Real Estate Ltd Licensed REAA(2008)

Real Estate Agents

Ray White Albany - Realty Insight
Ray White Albany - Realty Insight
27C William Pickering Drive
Rosedale
Auckland 0632
Listing #:
ABY32627
Listed:
146 days ago

Asking Price $3,190,000

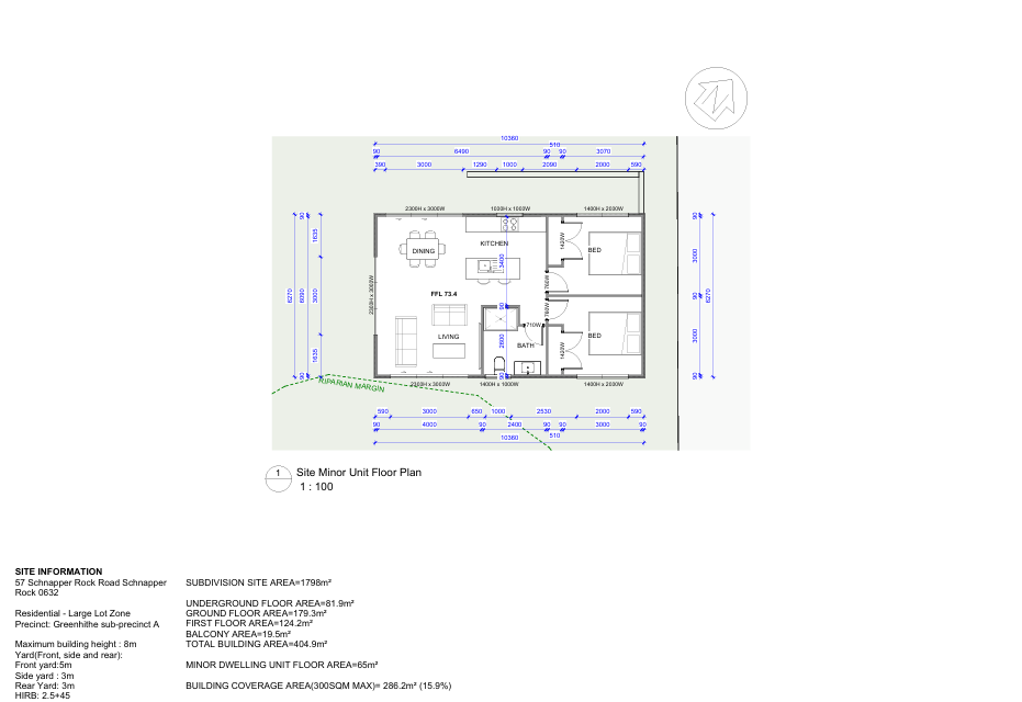
Spacious Luxury With Dual Living

Lot 1/57 Schnapper Rock Road, Schnapper Rock, North Shore City
Residential House
bedroom
8 Bedrooms
bathroom
6 Bathrooms
toilet
1 Toilet
floorarea
470m2 Floor Area
landarea
1,797m2 Land Area
About this property
Discover the ultimate in modern dual-living with this outstanding house & land package. Set on a vast 1,797 m2 (approx.) section, this premium property offers two distinct dwellings totaling approximately 470 m2 floor area, featuring 8 bedrooms, 6.5 bathrooms & 4 living areas. Designed for luxury, versatility & multi-generational comfort, it's the perfect combination of space, privacy & functionality.

Main Residence - Designed for Family Living

Step into sophistication & comfort with:
• Six spacious bedrooms, including four master suites each with private ensuite
• Expansive open-plan lounge, dining & modern kitchen plus a secondary kitchen
• Three generous living areas for family life, entertaining & relaxation
• Large balcony with sweeping bush views, ideal for gatherings or quiet retreats

Second Dwelling - Independence Meets Convenience
Ideal for extended family, guests or home-and-income potential, featuring:
• Two well-appointed bedrooms & one bathroom
• Comfortable living area & fully equipped kitchen
• Private entry providing full independence while staying close to the main home

Lifestyle & Location
Perfectly positioned in Schnapper Rock, near Albany, with:
• Easy motorway access (1 & 18) for seamless connectivity
• Zoning for Upper Harbour Primary, Albany Junior & Albany Senior High
• Close to top private schools Kristin & Pinehurst
• Minutes to Albany Mall, cafés, shops & North Shore Golf Club

Pricing & Package Information
• Home & land packages from $3,190,000 (subject to final specifications, engineering & dwelling size)
• Plans & images are indicative & may not reflect final inclusions or pricing

Don't miss this rare opportunity to create your dream home in one of Auckland's most desirable suburbs. Contact Lily Han on 021 900 198 to begin your journey toward luxury dual-living.
Check out whether you can get fibre internet
Meet your new neighbours on Neighbourly