Ray White Albany - Realty Insight

Ray White provides a broad range of real estate services from selling your property to property management. Visit our website to see over 12,000 properties on display.

We are a family owned business. When you choose Ray White, you are choosing over 100 years of experience and a name you can trust. We guarantee it!

Contact us to find out how Ray White can help you when it comes to property.

Ray White Albany
Ideal Real Estate Ltd Licensed REAA(2008)

Real Estate Agents

Ray White Albany - Realty Insight
Ray White Albany - Realty Insight
27C William Pickering Drive
Rosedale
Auckland 0632
Listing #:
ABY32536
Listed:
195 days ago

Price By Negotiation

Medical and Healthcare Spaces in Whenuapai

Whenuapai, Auckland
Commercial Other
floorarea
1,782m2 Floor Area
About this property
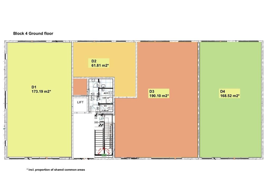
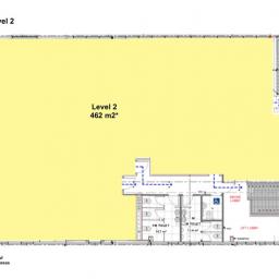
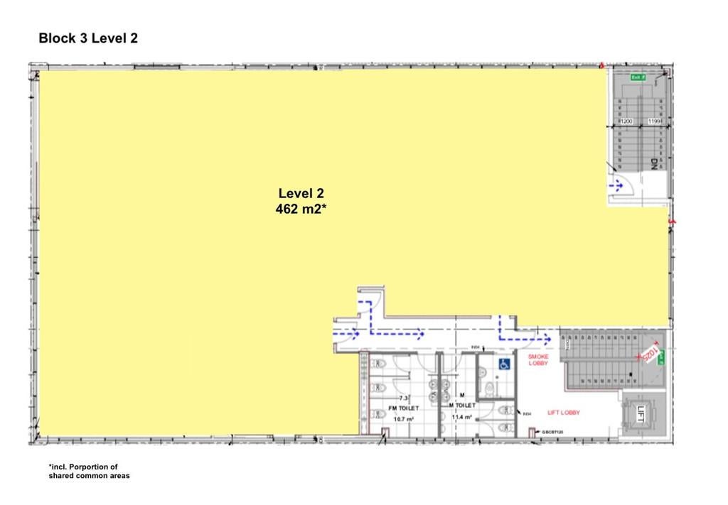
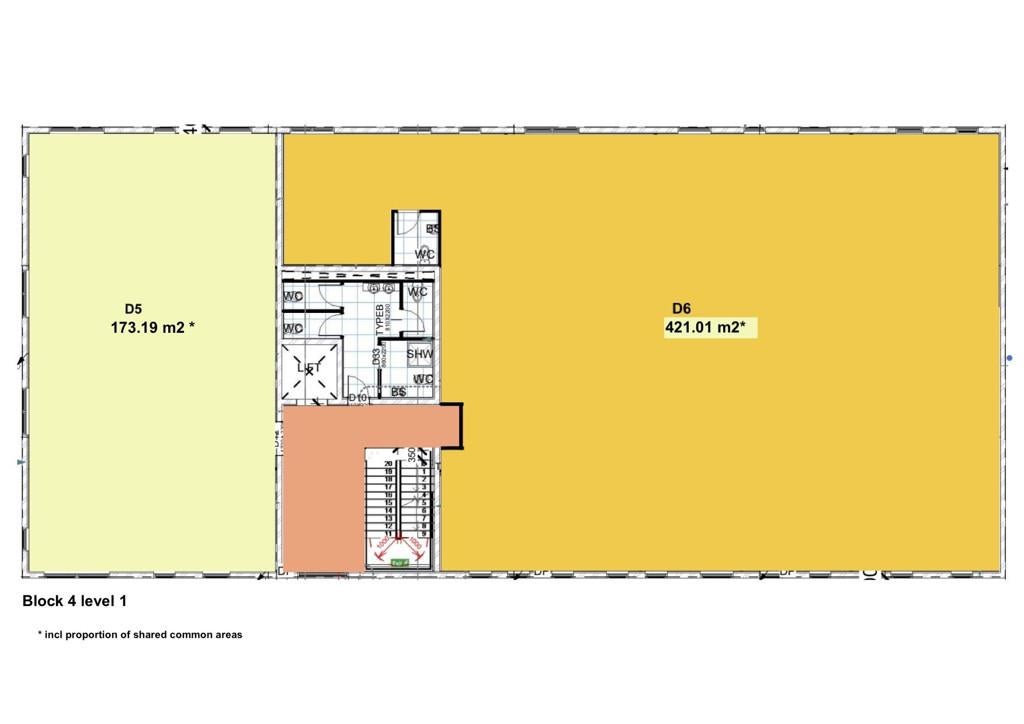
Premium Medical & Professional Spaces - Whenuapai Medical Centre
Looking to establish or grow your practice? This modern, purpose-built centre offers flexible spaces in one of Auckland's fastest-growing areas, just 2 minutes from major motorways.

Key Features:
• 8 units (53sqm-360sqm) across 3 levels
• Lift access, swipe-card security, and nearby public transport
• Customizable fitout to suit your needs
• Ideal for GPs, dentists, physios, specialists, and more

Why Whenuapai Medical Centre?
Join a thriving hub of complementary healthcare and professional services, designed for collaboration and growth.
Check out whether you can get fibre internet
Meet your new neighbours on Neighbourly