Lugtons Real Estate - Central Hamilton
1010 Victoria Street
Whitiora
Hamilton 3200
Listing #:
CE22907
Listed:
5 days ago

$675,000

A Smart Starter

20 Anthony Crescent, Bader, Hamilton
Residential House
bedroom
3 Bedrooms
bathroom
1 Bathroom
carparkgarage
1 Car Garage
floorarea
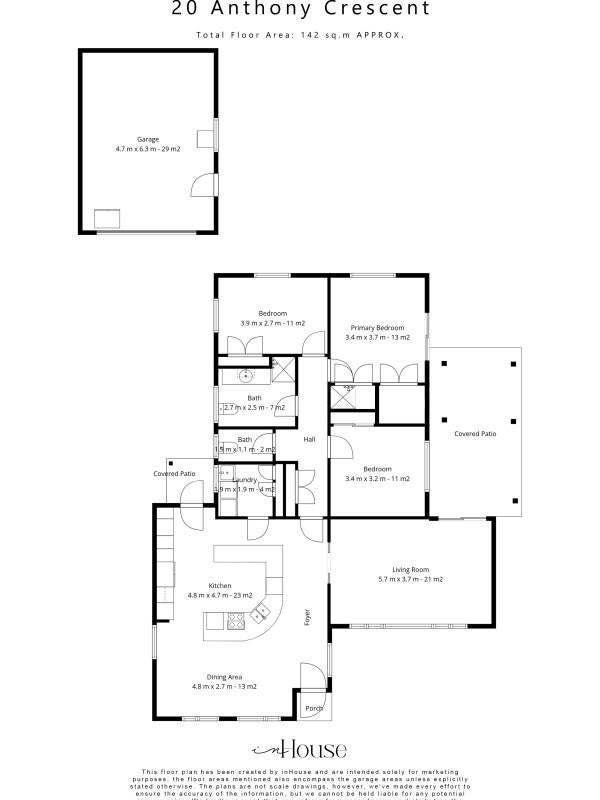
142m2 Floor Area
landarea
630m2 Land Area
About this property
Nestled in a central city cul-de-sac, this 1970s brick and aluminum home presents an excellent entry into the property market. Set on a generous 630sqm freehold section, it’s a practical package in a location that puts the Waikato Hospital, Braemar, the CBD and everyday essentials within easy reach.

With a floorplan spanning approximately 142sqm, the home offers content and space. The large modernised open-plan kitchen is a genuine highlight featuring a wraparound bench, two wall ovens and generous cabinetry. It connects easily to the dining and is a great space for socialising and entertaining. There is a separate living room with heatpump, which flows directly to a covered patio.

Three bedrooms are positioned toward the rear of the home and are served by a wet area family bathroom which is wheel-chair friendly, a (second) separate toilet and dedicated laundry.

A flat, fully fenced backyard keep things low maintenance, with plenty of room for children and pets.

The oversized standalone garage is fitted with power and adapts readily to a workshop, creative space or additional storage. There is also the added bonus of ample off-street parking.

Upgrades include the addition of two heatpumps (approx 2 years old), new lighting in the garage and electrical work for a spa.

Waikato Hospital, Peacockes Reserve Esplanade and the Waikato River walkways are all moments away, with schools, supermarkets and local shops close to hand.

This is a fantastic entry-level opportunity in a genuinely convenient location.

Property Files Link: www.propertyfiles.co.nz...

Viewing By Appointment only. Please contact Melissa to view - 021 157 3459
Check out whether you can get fibre internet
Meet your new neighbours on Neighbourly