Ray White Royal Oak

Ray White provides a broad range of real estate services from selling your property to property management. Visit our website to see over 12,000 properties on display.

We are a family owned business. When you choose Ray White, you are choosing over 100 years of experience and a name you can trust. We guarantee it!

Contact us to find out how Ray White can help you when it comes to property.

Ray White Royal Oak
Pure Realty Limited Licensed (REAA 2008)

Real Estate Agents

Ray White Royal Oak
Ray White Royal Oak
691 Manukau Road
Royal Oak
Auckland 1023
Listing #:
RYO30529
Listed:
7 days ago

Auction (unless sold prior)

Thu 9th Apr 5:00pm

Renovated Retreat

209a Church Street, Onehunga, Auckland City
Residential House
bedroom
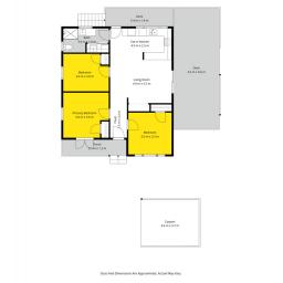
3 Bedrooms
bathroom
1 Bathroom
carparkoffstreet
4 Offstreet Car Parks
floorarea
94m2 Floor Area
About this property
Light-filled, stylishly renovated, and positioned for the sun - this north-facing Onehunga villa is ready to impress.

Stepping inside, native timber flooring and impressive high-stud ceilings welcome you, remaining true to the home's timeless appeal. The layout includes three double bedrooms each with built in storage and a sleek, tiled bathroom finished in a clean, contemporary style.

The heart of the home is the light-filled open-plan kitchen, living, and dining area. Skylights above enhance the natural light, creating a bright and inviting space to relax or gather with friends and family. Designed for entertaining, this central living zone flows effortlessly out to a sunny wrap-around deck - ideal for year-round outdoor living - and a fully fenced grass area perfect for kids or pets.

Outside, there is generous off-street parking with a carport, room for two vehicles, along with space for a trailer or small boat.

This home will appeal to a wide range of buyers, whether you're entering the market for the first time or looking to downsize without compromising on character or lifestyle.

Conveniently positioned just a short drive from Onehunga township, Cornwall Park, and major transport routes, everything you need is within easy reach.

Step inside to find:
• Three double bedrooms with built in storage
• Modern tiled bathroom
• Open plan kitchen, living and dining
• Kitchen with ample storage and skylight
• Outdoor flow to wrap around deck and fully fenced yard
• Native timber flooring and high stud ceilings
• Roof replaced ~2021
• Fully insulated with heat pump
• North facing
• Carport and three off street parks with room for small boat or trailer
• Short drive to Cornwall Park, Onehunga township and arterial transport routes

**Join us for the auction in our Ray White Royal Oak auction room on Thursday 9 April, at 5:00pm (unless sold prior)**
Check out whether you can get fibre internet
Meet your new neighbours on Neighbourly