Ray White Leaders

My name is Karen Kiely I work in the areas of Lower Hutt and Wainuiomata have been in Real Estate now over 7 years and I really enjoy my job if you are thinking of selling would be happy to talk about the process to receive a premium price for you and if you are looking for a home happy to work with you to find your dream home

Real Estate Agents

Ray White Leaders
9 Kings Crescent
Lower Hutt 5010
Listing #:
BDN35812
Listed:
11 days ago

Wednesday 1 April 2026 at 12:00pm

Exceptional Port-Side Apartment

3.01/28 Waterloo Quay, Pipitea, Wellington
Apartment
bedroom
2 Bedrooms
bathroom
2 Bathrooms
ensuite
1 Ensuite
toilet
3 Toilets
carparkgarage
1 Car Garage
floorarea
170m2 Floor Area
About this property
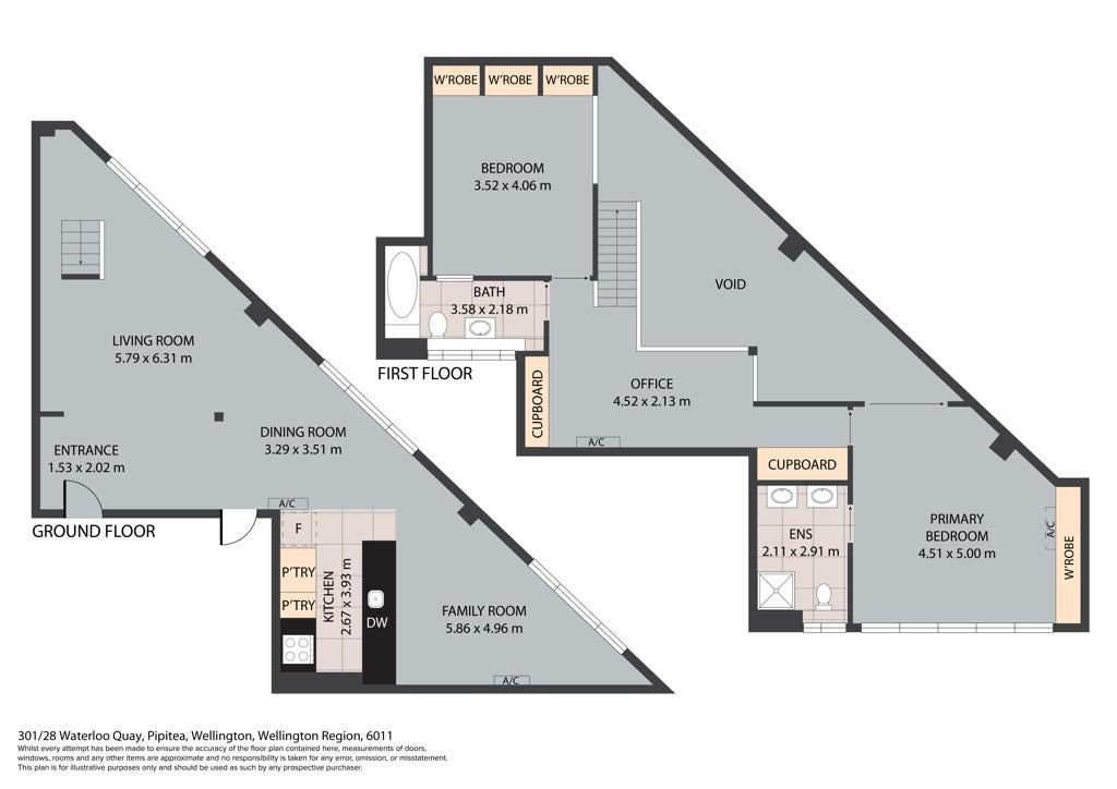
Located within the iconic Shed 21, this exceptional top-floor, 170sqm (approx.) harbour-side apartment offers an outstanding inner-city lifestyle for the most discerning buyer.

Occupying a prized north-facing corner position, this unique two-level residence beautifully blends original heritage character with a uniquely designed contemporary layout. The expansive open-plan living area is light-filled and inviting, with the intimate harbour outlook taking centre stage. Entertaining is effortless thanks to the modern galley kitchen which connects seamlessly with the open plan living spaces.

The upper level comprises two generous double bedrooms, one includes an en-suite and the other located next to the second bedroom. The large landing provides an ideal home office or study area, separate from the living spaces, and overlooking port and ferry vistas.

Perfectly positioned on the waterfront, the location is second to none. Within easy access to the CBD, Parliament grounds, stroll to nearby boutiques, cafes, and restaurants, or simply enjoy a relaxing walk along Wellington's vibrant waterfront.

Offering further opportunity to modernise and personalise, this is truly inner-city living without compromise - combining space, character, and an unbeatable harbourside setting.

Tenders close on Wednesday 1 April at 12 noon, at Ray White Leaders, Level 1, 77 Thorndon Quay.

Features:
• Prized north facing corning apartment
• Magnificent 170sqm floor area
• Spacious and sunny open plan living areas
• Seamless mix of character and contemporary
• Two large double bedrooms
• Two bathrooms including one ensuite plus guest w.c. downstairs
• Secure carpark with locked storage area
• R.V. $1,170,000
Check out whether you can get fibre internet
Meet your new neighbours on Neighbourly