Ray White Epsom

Ray White Black Group Realty have established themselves as the pre-eminent real estate brand and industry leaders in the premium property market. A dedicated team of professionals committed to excellence in client service and satisfaction work tirelessly representing the full gamut of customers’ interests from buyers, sellers, developers and investors.
Black Group’s Epsom operation is supported by more than 1,600 networked agents (across 156 national Ray White offices) working co-operatively to expose your property to a database of 9,000 buyers and 750,000 recipients of our property alerts.
The Black Group Team’s elite service and exceptional outcomes are driven by an accumulation of each individual agent’s intimate local market knowledge, focused campaigns and decisive negotiation and closing tactics.

Real Estate Agents

Ray White Epsom
Ray White Epsom
349A Manukau Road
Epsom
Auckland 1023
Listing #:
EPS34487
Listed:
12 days ago

Auction

Tue 31st Mar 4:00pm

Rare Development Opportunity - Approved Resource Consent Included

2 Knights Drive, Hillpark, Manukau City
Residential House
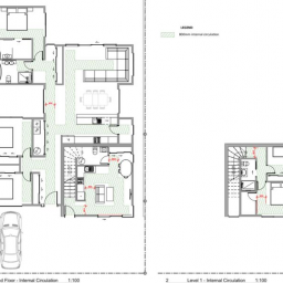
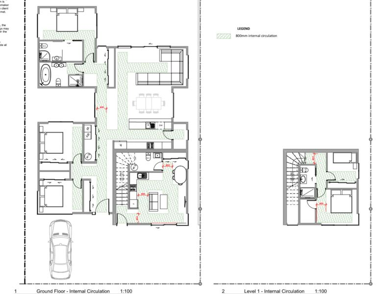
bedroom
3 Bedrooms
bathroom
1 Bathroom
toilet
1 Toilet
carparkgarage
1 Car Garage
carparkoffstreet
2 Offstreet Car Parks
floorarea
200m2 Floor Area
About this property
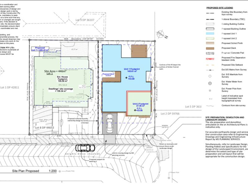
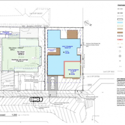
This is more than a family home - it's a ready-to-go development site. Set on a generous 812m² (more or less) freehold section, the property comes with approved Resource Consent, Building Consent, and EPA, allowing you to retain the existing home and build two additional dwellings. A rare opportunity in a sought-after Auckland location.

Existing Home - Comfortable and Ready to Live In
The solid brick and weatherboard home has been refreshed and features:
• Three spacious bedrooms
• Modern kitchen and large living areas
• Internal access garage, workshop, and separate laundry
• Plenty of storage for everyday family living

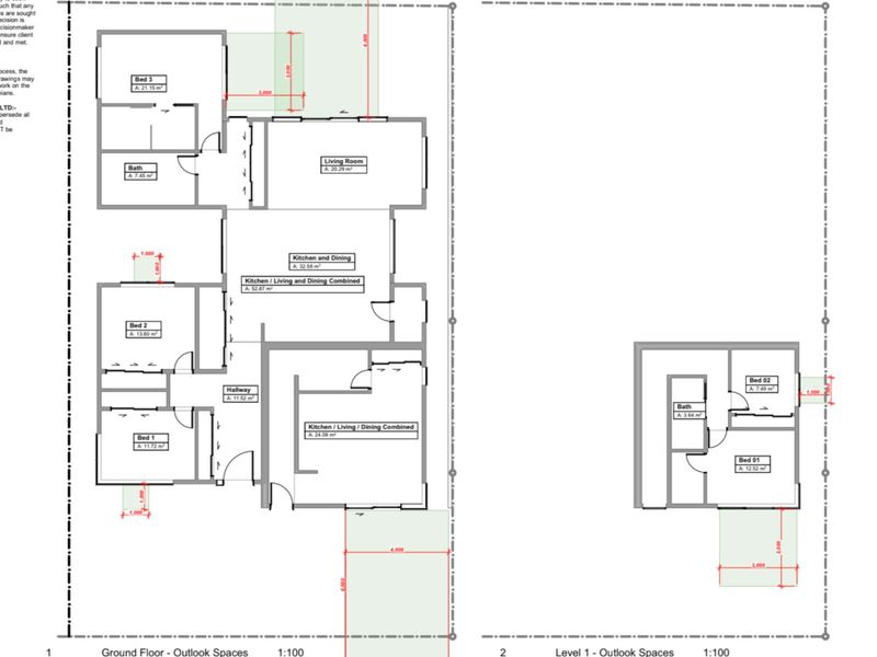
Future Development - Clear, Approved Plans
Approved plans allow for:
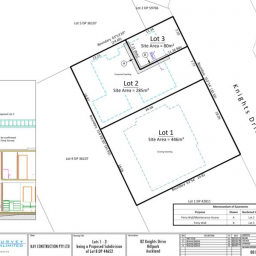
Lot 1: Existing home - 446m² land, approximately 200m² floor area.
Lot 2: New single-level home - 285m² land, approximately 148m² floor area.
Lot 3: New two-storey home - 80m² land, approximately 78m² floor area.

Build now, hold for future growth, or landbank - the choice is yours.

Location Perfect for Families or Tenants
Situated near the Auckland Botanic Gardens, Totara Park, schools, public transport, and motorway access, the property offers lifestyle, convenience, and excellent rental appeal.

Important Note: Photos were taken prior to the property being rented and are for visual reference only. The property is currently tenanted.
Check out whether you can get fibre internet
Meet your new neighbours on Neighbourly