Ray White Wellington City

Ray White provides a broad range of real estate services from selling your property to property management. Visit our website to see over 12,000 properties on display.

We are a family owned business. When you choose Ray White, you are choosing over 100 years of experience and a name you can trust. We guarantee it!

Contact us to find out how Ray White can help you when it comes to property.

Real Estate Services, Real Estate Agents

Ray White Wellington City
Listing #:
BDN35597
Listed:
12 days ago

Auction: Friday 2nd April 2026 at 10:00am

Thu 2nd Apr 10:00am

Estate Sale - Accessibility with Space & Style

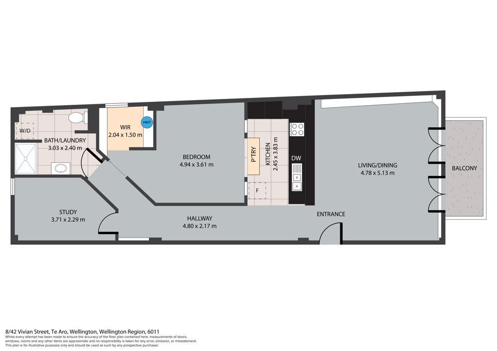
8/42 Vivian Street, Te Aro, Wellington
Apartment
bedroom
1 Bedroom
bathroom
1 Bathroom
floorarea
90m2 Floor Area
About this property
Rarely do you find this much room to breathe in the heart of the capital. This impressive 90sqm open-plan apartment offers a sophisticated inner-city lifestyle with a unique focus on space, comfort, and inclusivity.

The expansive master bedroom is complemented by a versatile home office space, perfectly sized to serve as a quiet workspace or a convenient guest bedroom for visitors.

Designed to be truly accessible, the apartment and front entrance were professionally modified to accommodate wheelchair users. With level-entry access and a lift to your second-floor retreat, movement here is effortless.

Enjoy the pulse of Te Aro from your private balcony, then step inside to total tranquility. Double glazing throughout ensures superior acoustic insulation and year-round warmth, making this a peaceful haven amidst the city buzz.

• 90sqm Interior: Open-plan living at its finest.
• Flexible Space: Large office/second bedroom potential.
• Fully Accessible: Modified entrance and wide-access layout.
• Comfort: Double glazed for heat retention and noise reduction.
• Location: Prime positioning, walk to the waterfront, work and entertainment.
• Body corporate levy $767.04 per month.
• Rates $3,486.06 per year.

The executors of the estate have issued clear instructions to get the property sold.

For sale by auction on 2 April 2026 at 1/77 Thorndon Quay, Pipitea, Ray White Wellington City Office.

Sun 29th Mar 12:00pm ~ 12:30pm

Wed 25th Mar 4:30pm ~ 5:00pm

Thu 26th Mar 12:00pm ~ 12:30pm

Check out whether you can get fibre internet
Meet your new neighbours on Neighbourly