Glass Miles Limited Mreinz

Real Estate Agents

Glass Miles Limited Mreinz
Glass Miles Limited Mreinz
115 Blenheim Road
Riccarton
Christchurch 8041
Listing #:
GMR12061
Listed:
14 days ago

Price by negotiation

Quality New Build!

8 Silvergrass Way, Rolleston, Canterbury
Residential House
bedroom
3 Bedrooms
bathroom
2 Bathrooms
carparkgarage
2 Car Garages
carparkoffstreet
2 Offstreet Car Parks
floorarea
170m2 Floor Area
landarea
500m2 Land Area
About this property
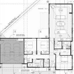
If you're looking for a spacious, quality-built home in Rolleston, look no further than this exceptional, yet-to-be-built property in the sought-after Arbor Green subdivision.

Currently under construction by reputable builders Norse Build, this beautifully designed home will feature three generous double bedrooms and two bathrooms, including a master with ensuite. The light-filled open-plan living area flows seamlessly to a sun-drenched, north-facing outdoor entertaining space, complete with lawn and garden areas—perfect for relaxing or hosting family and friends.

The stylish, modern kitchen will be well-appointed with quality appliances and thoughtful design. Positioned on a corner site, the home has been cleverly planned to maximise privacy and natural sunlight, while also offering double garaging, high-stud ceilings, and many additional quality features.

Conveniently located with easy access to central Rolleston, main transport routes, and quality schooling, this property offers both comfort and convenience in a thriving community.

Price Guide: Late $800,000s – Early $900,000s.

For more information, contact Stewart today.
Check out whether you can get fibre internet
Meet your new neighbours on Neighbourly