Lodge Real Estate - Rototuna
Shop 28b Rototuna Shopping Centre
Lodge Real Estate - HQ
11 Ulster Street
Whitiora
Hamilton 3200
Listing #:
L39834314
Listed:
14 days ago

$949,000

A Lifestyle Upgrade

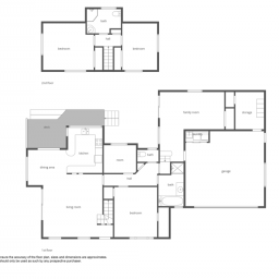
23 Mews Place, Forest Lake, Hamilton
Residential House
bedroom
4 Bedrooms
bathroom
2 Bathrooms
toilet
1 Toilet
carparkgarage
2 Car Garages
carparkoffstreet
3 Offstreet Car Parks
landarea
685m2 Land Area
About this property
Welcome to 23 Mews Place - a beautifully presented two-storey family home positioned at the end of a quiet cul-de-sac in a highly convenient central Hamilton location.

This spacious family home offers four generous bedrooms and two well-appointed bathrooms, making it ideal for growing families or those needing extra room to work from home. With two separate living areas, there is plenty of flexibility for modern family life, whether you need a formal lounge, a media room, or a dedicated space for the kids to unwind. The double internal-access garage with workshop or storage room adds everyday practicality, while the freehold title provides peace of mind and long-term security.

A major bonus is the (mostly) brand new roof completed in 2025, giving buyers confidence that an important upgrade has already been taken care of.

The location truly enhances the appeal. You're close to quality schools, local parks, and Waterworld, with public transport nearby and easy access to surrounding amenities. Despite being so central, the home enjoys the peace and privacy that comes from being tucked away in a quiet cul-de-sac - a perfect setting for families.

If you're searching for space, convenience, and comfort in a central Hamilton address, 23 Mews Place is a must-see. Contact Andrew today to arrange your viewing and secure this fantastic opportunity.
Check out whether you can get fibre internet
Meet your new neighbours on Neighbourly