Ray White Ferrymead

Ray White provides a broad range of real estate services from selling your property to property management. Visit our website to see over 12,000 properties on display.

We are a family owned business. When you choose Ray White, you are choosing over 100 years of experience and a name you can trust. We guarantee it!

Contact us to find out how Ray White can help you when it comes to property.

Ray White Ferrymead
Prier Manson Real Estate Ltd Licensed (REAA 2008)

Real Estate Agents

Ray White Ferrymead
Ray White Ferrymead
Suite 7
21 Humphreys Drive
Ferrymead
Christchurch 8023
Listing #:
OPA31963
Listed:
17 days ago

Auction Thursday 26 March from 11am (USP)

Thu 26th Mar 11:00am

Final Week! Character Gem - Prime School Zones

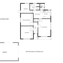
77 Colombo Street, Somerfield, Christchurch
Residential House
bedroom
3 Bedrooms
bathroom
1 Bathroom
carparkgarage
1 Car Garage
landarea
813m2 Land Area
About this property
For the property information, please go to: www.propertyfiles.co.nz...
Tucked quietly at the end of a long driveway, this charming cottage offers a sense of privacy and calm while still being wonderfully connected to everyday life. With cafes, shops and local amenities nearby, and zoning for popular Somerfield Primary and Cashmere High Schools, the location balances convenience with a neighbourhood feel many buyers appreciate.

From the moment you step onto the welcoming veranda and pass through the stained-glass leadlight front door, the character of the home becomes immediately apparent. Leadlight windows, timber wall panelling and warm interiors speak to the craftsmanship of an earlier era, while the light-filled living and neutral tones throughout create a comfortable and relaxed atmosphere.

The cute kitchen and dining space centres around polished tongue-and-groove timber flooring, bringing warmth and texture to the heart of the home. Nearby, the separate lounge with heat pump offers a cosy place to unwind, whether enjoying a quiet evening or gathering with friends.

Accommodation is well arranged with three bedrooms, or two bedrooms and a generous office that opens through patio doors. The updated bathroom continues the home's character story, where subway tiling frames the bath and shower and highlights the charming boxed leadlight window.

Outside, the cottage garden adds another layer of appeal. Established planting, a cobbled courtyard and timber decking create inviting outdoor spaces, complemented by the wrap-around veranda that encourages relaxed moments in the garden setting.

The result is a home with a lovely sense of history and personality, offering comfortable living in a sought after location. Our vendor lives overseas and wants to see this property sold; providing you with an affordable opportunity.

Contact The Standevens for more information.

Auction Thursday 26 March 2026 from 11am, Level 2, 76 Hereford Street (Unless sold prior)

rwferrymead.co.nz/OPA31963
Check out whether you can get fibre internet
Meet your new neighbours on Neighbourly