Ray White Marshland - Ōtautahi Real Estate Limited

We are your real estate one-stop shop for buying, selling or property management.

Our Vision & Mission
“To be people focused, offering care and accountability. We aim to build long-lasting relationships for life, and to provide our clients with positive, meaningful experiences based on quality customer service when buying, selling or seeking advice in real estate.”

Contact us today to learn how our exceptionally friendly and experienced people navigate a real estate solution that will get you more.

Real Estate Services

Ray White Marshland - Ōtautahi Real Estate Limited
Ray White Marshland - Ōtautahi Real Estate Limited
420 Marshland Road
Marshland
Christchurch 8083
Listing #:
NTW32012
Listed:
1 day ago

Starting From $599,000

Because Parking On Street Is Overrated

1-4/61 Brynley Street, Hornby, Christchurch
Residential House
bedroom
2 Bedrooms
bathroom
1 Bathroom
carparkgarage
1 Car Garage
About this property
A fantastic opportunity to secure a brand new home at 61 Brynley Street, built by a trusted builder and backed by a Master Build Guarantee for complete peace of mind.

If you have been watching the market you will know many new townhouses are being built without garages. These homes stand out by offering secure internal access garaging across all units, making them ideal for both homeowners and investors who value convenience and long term value.

Quality construction, smart layouts and modern finishes make these homes a standout choice.

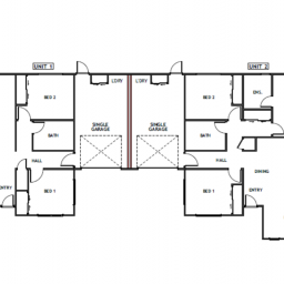
Unit Configuration

Unit 1
2 bedroom 1 bathroom with internal access garage
Total floor area 94.96 sqm

Unit 2
3 bedroom 2 bathroom with internal access garage
Total floor area 110.15 sqm

Unit 3
3 bedroom 2 bathroom with internal access garage
Total floor area 110.15 sqm

Unit 4
2 bedroom 1 bathroom with internal access garage
Total floor area 94.96 sqm

Key Features
Master Build Guarantee for peace of mind
Internal access garages in every unit
Quality kitchen with engineered stone benchtops
Bosch appliances
Open plan living and dining
Fully tiled bathrooms and quality fittings
Heat pump for year round comfort
Low maintenance landscaped sections
Freehold titles

These homes offer the perfect blend of style, practicality and investment potential. Whether you are a first home buyer, investor or downsizer, having a garage with a new build adds security, storage and long term appeal that many new developments simply do not offer.

Strong rental demand and modern construction make this a smart addition to any property portfolio or an ideal place to call home.

Property documents can be downloaded from the following site: www.propertyfiles.co.nz...

REA guides can be found at: www.rea.govt.nz...

All information about the property has been provided to Ray White by third parties. Ray White has not verified the information and does not warrant its accuracy or completeness. Parties should make and rely on their own enquiries in relation to the property.
Check out whether you can get fibre internet
Meet your new neighbours on Neighbourly