Ray White Beach Haven

Ray White provides a broad range of real estate services from selling your property to property management. Visit our website to see over 12,000 properties on display.

We are a family owned business. When you choose Ray White, you are choosing over 100 years of experience and a name you can trust. We guarantee it!

Contact us to find out how Ray White can help you when it comes to property.

Ray White Beach Haven
Carpenter Realty Ltd Licensed (REAA 2008)

Real Estate Agents

Ray White Beach Haven
Ray White Beach Haven
350 Rangatira Road
Beach Haven
Auckland 0626
Listing #:
GLF32171
Listed:
2 hours ago

$889,000

Private, Polished and Priced to Fly!

2/25 Flaxdale Street, Birkdale, North Shore City
Residential House
bedroom
3 Bedrooms
bathroom
1 Bathroom
carparkgarage
1 Car Garage
carparkoffstreet
3 Offstreet Car Parks
floorarea
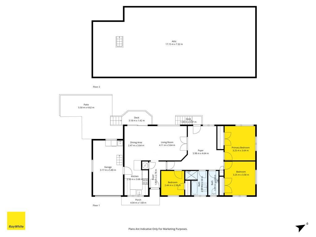
110m2 Floor Area
About this property
Tucked away in complete serenity, this beautifully maintained 1993 home is the peaceful retreat you've been waiting for. Elevated and private, with a serene bush outlook, this is the kind of home that instantly exhales the moment you walk through the door.

Warm, dry and exceptionally well insulated (ceiling, walls and underfloor), every detail has been thoughtfully cared for. A brand-new roof installed in 2022 offers reassurance and peace of mind, while the meticulous maintenance by these fastidious owners is evident throughout.

Designed for real living, the home offers three generous bedrooms and two separate lounges, perfect for families needing extra space, a media room for movie nights, or a quiet second living area to retreat to at the end of the day, or surrender to the kids!

The recently renovated bathroom feels like a spa-like oasis, complete with a generous bathtub, an ideal way to unwind and reset. The separate toilet is appreciated by busy families.

The modern, sleek kitchen, complete with an induction hob, is both stylish and functional. The dining flows effortlessly to your private outdoor entertaining areas, ideal for hosting friends or enjoying peaceful evenings in the garden. Speaking of the garden... If gardening and landscaping are your passion, you'll love the generous blank canvas on offer here. There is even room for the future swimming pool, minor dwelling, second garage, or simply relax and enjoy the low-maintenance parcel on offer. The fully fenced section allows great peace of mind, letting the children and pets explore and roam safely.

Storage is exceptional with internal access garaging, attic stairs for great loft storage, and substantial under-house storage; there is room for everything... and then some!

Location is key, with easy motorway access for commuters, walking distance to the fantastic local high school, Intermediate and several great Primary schools, and the best bus routes on the North Shore at the end of the street!

An extensive list of chattels highlights the pride of ownership and the high level of maintenance invested by the current proud and fastidious owners.

And importantly, this is not an auction!!! The owners are motivated, priced to sell, and absolutely not mucking around, and neither should you!

Call Regan or David today for more information, or we look forward to seeing you at the advertised open homes this weekend.

Sat 14th Feb 10:30am ~ 11:30am

Sun 15th Feb 10:30am ~ 11:30am

Check out whether you can get fibre internet
Meet your new neighbours on Neighbourly