Ray White Howick

Ray White provides a broad range of real estate services from selling your property to property management. Visit our website to see over 12,000 properties on display.

We are a family owned business. When you choose Ray White, you are choosing over 100 years of experience and a name you can trust. We guarantee it!

Contact us to find out how Ray White can help you when it comes to property.

Ray White Howick
Mountfort Estate Agents Ltd Licensed (REAA 2008)

Real Estate Agents

Ray White Howick
Ray White Howick
12 Uxbridge Road
Mellons Bay
Auckland 2014
Listing #:
HOW44911
Listed:
1 day ago

Set Sale Date (unless sold prior)

Position, Privacy, Perfection

216 Ness Valley Road, Clevedon, Papakura
Other
bedroom
5 Bedrooms
bathroom
3 Bathrooms
carparkgarage
2 Car Garages
carparkoffstreet
6 Offstreet Car Parks
landarea
4,047m2 Land Area
About this property
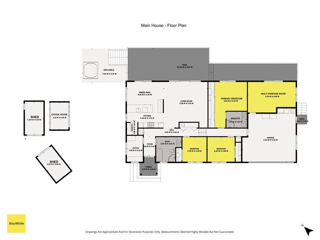
Welcome to 216 Ness Valley Road, Clevedon - a beautiful family home set on a generous 4047m2 block, offering an idyllic blend of space, comfort, and modern living. The flexible floor-plan could offer you three, four or even five bedrooms, depending on your requirements, making it perfect for families seeking room to grow.

As you enter, you'll be greeted by an impeccable interior that boasts a modern kitchen with a butler's pantry, high-quality appliances, including a gas cooktop and wall oven. The combined dining area is perfect for family meals, while the adjacent lounge offers a cozy retreat. Additional spaces include a rumpus and a study, providing versatility for your family's needs.

Step outside to discover a beautifully maintained exterior, featuring extensive decking, perfect for entertaining. Enjoy the luxury of being surrounded by lush greenery, stunning bush and rural views, ensuring your outdoor space is both private and serene.

This main home (built approximately 2010) is equipped with essential features such as a double glazing, five heat pumps for year-round comfort, a security system for peace of mind, and a bio cycle sewage system. The double garage with internal access, and additional parking on the dual access driveway adds convenience to your lifestyle.

There is further accommodation in the charming cottage that was the original Sunday School for the area. The cottage enjoys its own private garden and views and offers endless opportunities - perhaps an artist studio, guest house or the perfect set up for extended family.

Located in a prime area, there is easy access to shops and schools, making it an ideal choice for families. This spectacular home provides a safe space for children to play, while the tank water supply ensures sustainability.

So, if you are ready for that lifestyle dream, but without the hard work of a larger block and just a six-minute drive to Clevedon Village, market and amenities - you really must view this unique opportunity.

Don't miss your chance to own this remarkable property. The price guide is a Set Date of Sale, so act quickly to secure your dream home in Clevedon.

Set Date of Sale - 5th March 2026, 3:00pm (unless sold prior)

Contact Clare or Jay for more information today!

Disclaimer - This property is being sold without a price and therefore a price guide cannot be provided. The website may have filtered the property into a price bracket for website functionality purposes.

All prospective purchasers shall complete their own due diligence, seek legal and expert advice, and satisfy themselves with respect to information supplied during the marketing of this property, including but not limited to: the floor and land sizes, boundary lines, underground services, along with any scheme plans or consents.

Sat 7th Feb 11:00am ~ 11:30am

Sun 8th Feb 11:00am ~ 11:30am

Check out whether you can get fibre internet
Meet your new neighbours on Neighbourly