Ray White New Brighton

Ray White provides a broad range of real estate services from selling your property to property management. Visit our website to see over 12,000 properties on display.

We are a family owned business. When you choose Ray White, you are choosing over 100 years of experience and a name you can trust. We guarantee it!

Contact us to find out how Ray White can help you when it comes to property.

Ray White New Brighton
Results Realty Ltd Licensed (REAA 2008)

Real Estate Agents

Ray White New Brighton
Ray White New Brighton
118 Brighton Mall
New Brighton
Christchurch 8061
Listing #:
NWB33277
Listed:
1 day ago

Auction (Unless Sold Prior)

Thu 5th Mar 11:00am

As Is, Where Is - Space, Scale & Potential!

9a Sequoia Place, Parklands, Canterbury
Residential House
bedroom
5 Bedrooms
bathroom
2 Bathrooms
carparkgarage
3 Car Garages
floorarea
310m2 Floor Area
landarea
1,071m2 Land Area
About this property
Property files are available here: filefling.co.nz...

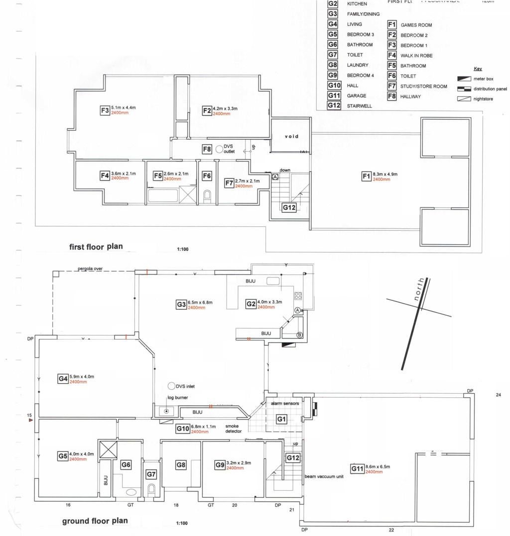
Offering an exciting As Is, Where Is opportunity with massive potential, this spacious earthquake-damaged family home delivers room in spades on a generous 1071m2 section set well off the road. Boasting five bedrooms, two bathrooms, and an impressive 310m2 floor area, the home features open-plan living complemented by a large kitchen with ample storage, a separate toilet, and separate laundry. Excellent indoor-outdoor flow creates easy connection to the outdoors, ideal for entertaining or relaxed family living. Three-car garaging plus abundant off-street parking easily accommodates the boat and caravan, while the expansive grounds provide space for the whole family to enjoy. A tidy long-term tenant on a periodic tenancy, keen to stay on, adds an immediate income stream-making this an outstanding opportunity for buyers with vision.

9a Sequoia Place Offers:
- As Is Where Is opportunity with massive potential
- 5 Bedrooms
- 2 Bathrooms
- 310m2 floor
- Open plan living
- Large kitchen with ample storage
- Separate toilet
- Separate laundry
- Excellent indoor outdoor flow
- 3 car garaging plus ample off street parking
- 1071m2 section set off the road
- Space for the whole family to enjoy
- In zone for Queenspark School, Avonside Girls High School, Shirley Boys High School & Mairehau High School
- Long term tenant keen to stay on

Positioned in the heart of Parklands, this location delivers the perfect balance of space, convenience, and outdoor living-ideal for a home of this size. With Bottle Lake Forest Park, Waimairi Beach, Waimairi Golf Course, and the Taiora Recreation and Sport Centre all close by, plus nearby public transport and local shops, everything you need is within easy reach. Whether it's weekend adventures or everyday convenience, this well-connected setting complements the home's generous living spaces and outdoor areas, offering a lifestyle the whole family can enjoy. Call Team Holly Jones today!

Auction: Thursday 5th March 2026 from 11am - Ray White Metro Level 2/76 Hereford Street, Christchurch Central City (unless sold prior)

This information has been supplied by the vendor and/or sourced from: Property Guru, Property Smarts, LINZ, Local Councils, ECAN, CERA and other organisations. Results Realty Limited Licensed (REAA 2008) is passing over this information. We cannot guarantee its accuracy or reliability and recommend purchasers undertake their own due diligence.

Mon 9th Feb 11:00am ~ 11:30am

Check out whether you can get fibre internet
Meet your new neighbours on Neighbourly