Ray White Beachlands

Ray White provides a broad range of real estate services from selling your property to property management. Visit our website to see over 12,000 properties on display.

We are a family owned business. When you choose Ray White, you are choosing over 100 years of experience and a name you can trust. We guarantee it!

Contact us to find out how Ray White can help you when it comes to property.

Lighthouse
Lighthouse Real Estate Limited Licensed REAA 2008

Real Estate Agents

Ray White Beachlands
Ray White Beachlands
81A Second View Avenue
Beachlands
Auckland 2018
Listing #:
BCH31439
Listed:
4 days ago

Auction (unless sold before)

Sun 8th Mar 3:00pm

Land Of Opportunity

73 Andrew Road, Howick, Manukau City
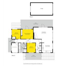
Residential House
bedroom
3 Bedrooms
bathroom
1 Bathroom
carparkgarage
1 Car Garage
carparkoffstreet
2 Offstreet Car Parks
landarea
817m2 Land Area
About this property
Set on a generous 817sqm freehold site in the sought-after Residential - Mixed Housing Suburban Zone, 73 Andrew Road, Howick presents an outstanding opportunity for renovation, development, or future land banking.

The existing 1960s dwelling comprises three bedrooms, one bathroom, a separate powder toilet, and a downstairs garage, providing holding income or renovation potential while future plans are considered.

Zoning allows for a range of development outcomes (subject to council consent), making this an ideal prospect for developers, builders, or investors seeking to unlock value in a premium Eastern Bays location.

Conveniently located close to Howick Village, New World, and a full range of local primary, intermediate, and college schooling options, this address will continue to appeal strongly to future end buyers.

Sites of this size and zoning in central Howick are increasingly scarce. For those looking to secure a strategic parcel with genuine upside, 73 Andrew Road is an opportunity not to be missed.

Auction (Unless Sold Prior): 3pm Sunday 8th March 2026, On Site, 73 Andrew Road, Howick.

Sat 7th Feb 12:15pm ~ 12:45pm

Sun 8th Feb 12:15pm ~ 12:45pm

Check out whether you can get fibre internet
Meet your new neighbours on Neighbourly