Ray White Beach Haven

Ray White provides a broad range of real estate services from selling your property to property management. Visit our website to see over 12,000 properties on display.

We are a family owned business. When you choose Ray White, you are choosing over 100 years of experience and a name you can trust. We guarantee it!

Contact us to find out how Ray White can help you when it comes to property.

Ray White Beach Haven
Carpenter Realty Ltd Licensed (REAA 2008)

Real Estate Agents

Ray White Beach Haven
Ray White Beach Haven
350 Rangatira Road
Beach Haven
Auckland 0626
Listing #:
GLF31997
Listed:
8 days ago

Auction

Wed 18th Feb 5:00pm

Hillcrest Family Home with Harbour Views!

175 Glenfield Road, Hillcrest, North Shore City
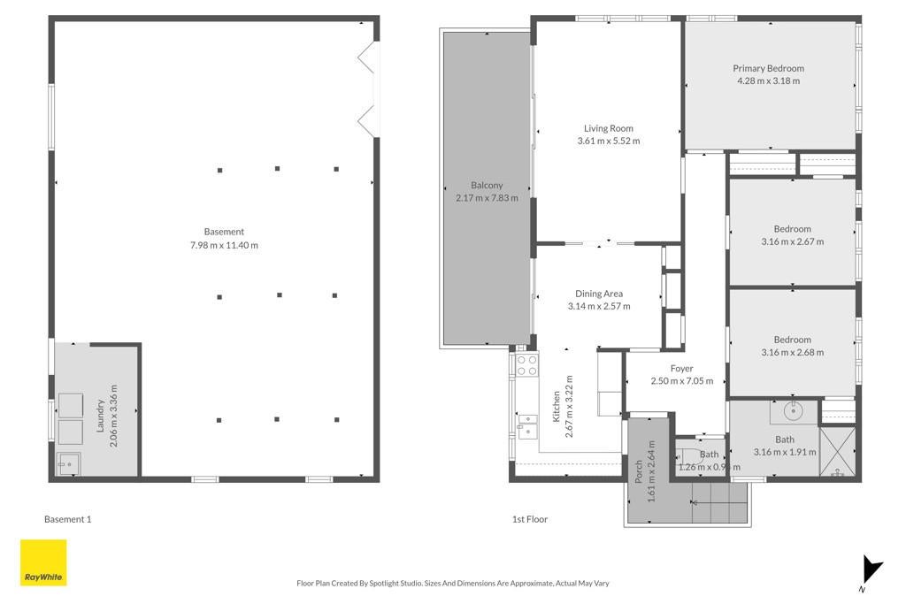
Residential House
bedroom
3 Bedrooms
bathroom
1 Bathroom
toilet
1 Toilet
carparkoffstreet
1 Offstreet Car Park
floorarea
120m2 Floor Area
landarea
809m2 Land Area
About this property
Elevated for breathtaking harbour, Rangitoto, and city skyline views, this 1950s brick home offers space, lifestyle, and room to grow. Across from Eskdale Reserve and zoned for Willow Park School, it's ideal for families, renovators, or those seeking long-term potential.

Enjoy everyday living now, with scope to renovate or expand in the future. Rarely does a Hillcrest home offer this combination of land, location, and outlook.

Key Features:
- 809m² freehold site (more or less)
- 3 bedrooms, 1 bathroom, double-glazed
- Opposite Eskdale Reserve - ideal for kids, pets, recreation
- Zoned for Willow Park School
- Easy bus access & commuting
- Brick & Tile profile

A home with history, space, and views that simply can't be replicated - Our lovely Owners are off on their new adventure to Tauranga & 175 Glenfield Road is ready for its next chapter.

For Open Homes: You can park on Eskdale Road or McDowell Crescent or Give Maddy a call today to arrange a private viewing.

Auction: 5:00pm, Tuesday 18th February 2026 In Rooms, Ray White Glenfield, Glenfield Mall (unless sold prior). Watch live: rwcarpenterrealty.co.nz...

Sat 7th Feb 2:30pm ~ 3:00pm

Sun 8th Feb 2:30pm ~ 3:00pm

Check out whether you can get fibre internet
Meet your new neighbours on Neighbourly