Ray White Beach Haven

Ray White provides a broad range of real estate services from selling your property to property management. Visit our website to see over 12,000 properties on display.

We are a family owned business. When you choose Ray White, you are choosing over 100 years of experience and a name you can trust. We guarantee it!

Contact us to find out how Ray White can help you when it comes to property.

Ray White Beach Haven
Carpenter Realty Ltd Licensed (REAA 2008)

Real Estate Agents

Ray White Beach Haven
Ray White Beach Haven
350 Rangatira Road
Beach Haven
Auckland 0626
Listing #:
ORW30354
Listed:
9 days ago

Auction

Wed 18th Feb 5:00pm

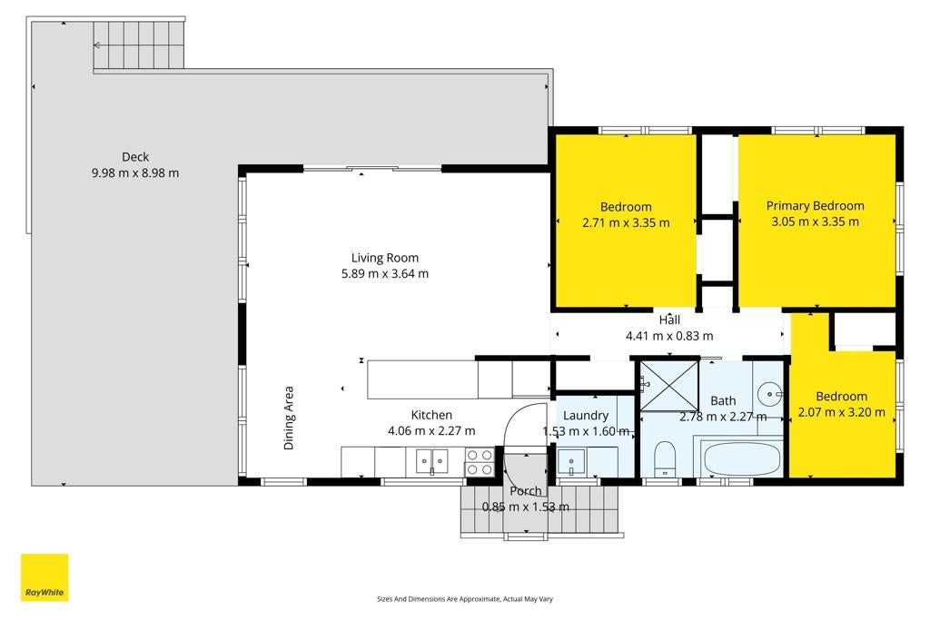
Sun, Space and Seaside Simplicity

3 Win Grove, Hatfields Beach, Rodney
Residential House
bedroom
3 Bedrooms
bathroom
1 Bathroom
carparkgarage
1 Car Garage
carparkoffstreet
4 Offstreet Car Parks
floorarea
89m2 Floor Area
landarea
720m2 Land Area
About this property
Set in a quiet location and family-friendly cul de sac, 3 Win Grove presents an outstanding opportunity to secure a spacious, refreshed home just moments from the coast. Fully refreshed inside, the interior is clean, modern, and move-in ready, offering comfortable living with nothing left to do but enjoy.

Set on a generous, well-proportioned north facing section, the property offers plenty of space for a trampoline, back yard cricket, entertaining, and future potential. A large deck extends the living area outdoors, creating the perfect setting for alfresco dining, summer barbecues, and relaxed gatherings with family and friends. The sense of space and privacy makes this home ideal for enjoying time together both inside and out.

Practicality is a standout, with a garage and additional workshop located underneath the home - ideal for storage, hobbies, and everyday family needs. This flexible layout adds real value and convenience for busy households.

Extensive parking adds even more appeal, with plenty of space for boats, cars, caravans, and guest vehicles. Whether you're hosting friends, storing your recreational toys, or accommodating family visitors, this property delivers the ultimate in convenience and versatility.

Enjoy the best of coastal living with Hatfields Beach just minutes away, ideal for morning walks and weekend swims, while the vibrant cafes, shops, and amenities of Orewa Township are close at hand. With easy access to schools, parks, and transport routes, this well-located home offers a lifestyle that combines space, comfort, and coastal convenience.

A refreshed family home, a coastal lifestyle, and space to grow - this is one you won't want to miss!

Auction: 5:00pm, Wednesday 18th February 2026 In Rooms, Ray White Glenfield, Glenfield Mall (unless sold prior). You can watch the auction live here rwcarpenterrealty.co.nz...

Sat 7th Feb 11:30am ~ 12:00pm

Sun 8th Feb 11:30am ~ 12:00pm

Check out whether you can get fibre internet
Meet your new neighbours on Neighbourly