Ray White Howick

Ray White provides a broad range of real estate services from selling your property to property management. Visit our website to see over 12,000 properties on display.

We are a family owned business. When you choose Ray White, you are choosing over 100 years of experience and a name you can trust. We guarantee it!

Contact us to find out how Ray White can help you when it comes to property.

Ray White Howick
Mountfort Estate Agents Ltd Licensed (REAA 2008)

Real Estate Agents

Ray White Howick
Ray White Howick
12 Uxbridge Road
Mellons Bay
Auckland 2014
Listing #:
HOW44866
Listed:
10 days ago

Auction (unless sold prior)

Tue 17th Feb 6:00pm

Magical Home for your family & Extended family!

11 Marendellas Drive, Bucklands Beach, Manukau City
Residential House
bedroom
5 Bedrooms
bathroom
3 Bathrooms
carparkgarage
2 Car Garages
landarea
612m2 Land Area
About this property
Auction: 6.00pm, Tuesday 17 February (unless sold prior)

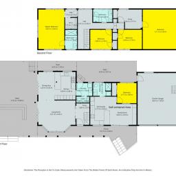
Discover the perfect blend of space, comfort and versatility in this beautifully presented five bedroom, three bathroom family home, thoughtfully designed to accommodate growing families and extended living. Set on a sun-drenched 612sqm freehold section, this property offers generous proportions both inside and out, making it an ideal sanctuary for modern family life.

The home features a self-contained downstairs living area, perfect for extended family, guests, teenagers, while still maintaining privacy and functionality. Downstairs, light-filled living spaces flow seamlessly to outdoor areas, where landscaped gardens provide a tranquil setting for entertaining, relaxing, or watching the kids play.

A double car garage ensures secure parking and ample storage, while the property benefits from both services on site, adding further convenience and peace of mind.

Families will love the highly sought-after school zoning, including Macleans Primary, Howick Intermediate and Pakuranga College, making this an exceptional long-term investment in both lifestyle and education.

Don't miss your chance to secure a spacious, flexible home in a premium location.

Sat 7th Feb 1:15pm ~ 1:45pm

Sun 8th Feb 1:15pm ~ 1:45pm

Check out whether you can get fibre internet
Meet your new neighbours on Neighbourly