Ray White Remuera

Ray White provides a broad range of real estate services from selling your property to property management. Visit our website to see over 12,000 properties on display.

We are a family owned business. When you choose Ray White, you are choosing over 100 years of experience and a name you can trust. We guarantee it!

Contact us to find out how Ray White can help you when it comes to property.

Ray White Remuera
Megan Jaffe Real Estate Ltd Licensed (REAA 2008)

Real Estate Agents

Ray White Remuera
Ray White Remuera
411 Remuera Road
Remuera
Auckland 1050
Listing #:
RMU44469
Listed:
11 days ago

Auction (Unless sold prior)

Tue 24th Feb 2:00pm

All the Advantages on Ariki

41 Ariki Street, Grey Lynn, Auckland City
Residential House
bedroom
3 Bedrooms
bathroom
2 Bathrooms
toilet
1 Toilet
floorarea
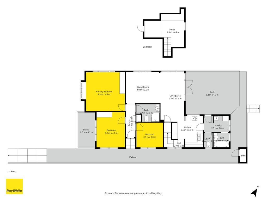
141m2 Floor Area
landarea
481m2 Land Area
About this property
Every astute buyer knows that real estate is about three things: Location - Location - Location. 41 Ariki Street has all the LOCATION advantages and much, much more.

Set below the street (with no off-street parking), this 1920's Bungalow will get you into one of Auckland's most desirable suburbs. The home offers 3 well-proportioned bedrooms, two with built-in wardrobes, an attic office and two bathrooms, (one with a bath) plus a modern kitchen.

The generous open-plan living area flows out through French doors onto the sunny, private deck area overlooking the garden, perfect for year-round entertaining. The home is within walking distance of three parks, cafes, boutique shops and the vibrant buzz of Ponsonby Road. If you are serious about living in this great location, then you MUST view this property before making your buying decision.

This property will appeal to young professionals, buyers downsizing, but wanting to stay in the area, astute investors and those looking for a home that they can add further value to.

Phone us today to arrange a private viewing or come along to one of our advertised open homes. Conjuncting agents very welcome.

Sat 7th Feb 12:00pm ~ 12:30pm

Sun 8th Feb 12:00pm ~ 12:30pm

Sat 14th Feb 12:00pm ~ 12:30pm

Sun 15th Feb 12:00pm ~ 12:30pm

Sat 21st Feb 12:00pm ~ 12:30pm

Sun 22nd Feb 12:00pm ~ 12:30pm

Check out whether you can get fibre internet
Meet your new neighbours on Neighbourly