Ray White Wellington City

Ray White provides a broad range of real estate services from selling your property to property management. Visit our website to see over 12,000 properties on display.

We are a family owned business. When you choose Ray White, you are choosing over 100 years of experience and a name you can trust. We guarantee it!

Contact us to find out how Ray White can help you when it comes to property.

Real Estate Services, Real Estate Agents

Ray White Wellington City
Ray White Lower Hutt
9 -11 Kings Crescent
Listing #:
UHT30823
Listed:
18 days ago

Deadline: Wednesday 18th February at 12:00pm

Brand New - House and Land Package!

3F Pokaka Street, Birchville, Upper Hutt
Other
landarea
198m2 Land Area
About this property
Deadline: Wednesday 18th February at 12:00pm

Be the first to make this house and land package your own, nestled in the family-friendly suburb of Birchville - just minutes from the heart of Upper Hutt and surrounded by native hillsides and the winding Hutt and Akatarawa Rivers. With construction yet to begin, this is your chance to secure land and a brand new home!

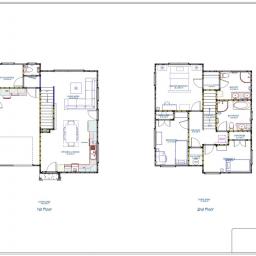
House plans are for a three-bedroom, two and a half bathroom modern family home, situated over two storeys. You'll get to choose final internal finishes to make sure it suits your style, but then all there is to do is sit back and relax while your new home is completed.

Birchville's relaxed vibe and close proximity to schools, transport and Upper Hutt's amenities makes this package ideal for first-home buyers or growing families. With river trails, parks and playgrounds nearby, your morning walks and weekend adventures are sorted.

Site preparation is complete and this home is ready to build once you fall in love.

View video here: www.youtube.com...

- Brand new house and land package
- 149sqm home & 198sqm section (more or less)
- 3 bedrooms
- 2 bathrooms
- Single internal-access garage
- Choose finishing options
- Located near schools, public transport and parks
Check out whether you can get fibre internet
Meet your new neighbours on Neighbourly