Ray White Beach Haven

Ray White provides a broad range of real estate services from selling your property to property management. Visit our website to see over 12,000 properties on display.

We are a family owned business. When you choose Ray White, you are choosing over 100 years of experience and a name you can trust. We guarantee it!

Contact us to find out how Ray White can help you when it comes to property.

Ray White Beach Haven
Carpenter Realty Ltd Licensed (REAA 2008)

Real Estate Agents

Ray White Beach Haven
Ray White Beach Haven
350 Rangatira Road
Beach Haven
Auckland 0626
Listing #:
GLF31606
Listed:
23 days ago

Auction

Tue 3rd Feb 11:00am

Auction this Tuesday from 11am!

43a Stanley Road, Glenfield, North Shore City
Residential House
bedroom
2 Bedrooms
bathroom
1 Bathroom
carparkgarage
2 Car Garages
About this property
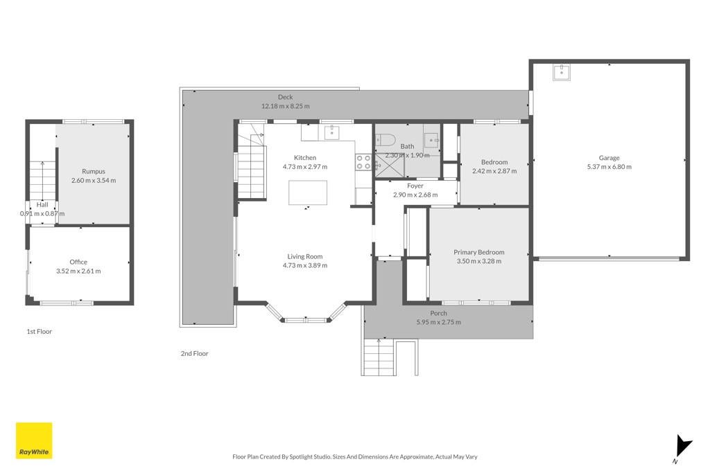
This beautifully renovated two-bedroom, one-bathroom home sits in the heart of Glenfield and is full of charm. Ideal for first-home buyers, smaller families looking for extended living, or professionals seeking a stylish, low-maintenance start, it offers comfort, character, and flexibility.

Set back from the road, this generous 132m² (more or less) home enjoys all-day sunshine and a peaceful sense of privacy. The recent renovation extends downstairs to include a versatile rumpus room and a dedicated office space-ideal for working from home or extra living. Outside, the private and tranquil setting is framed by leafy tree views, with native bird song providing a gentle soundtrack to everyday life.

A double garage plus off-street parking adds everyday ease, while excellent public transport access makes commuting simple. Everyday convenience is well covered, with Glenfield Pool, gym and leisure centre nearby, along with the Glenfield Mall for shopping and essentials. The local playground, Windy Ridge Primary School, and walking tracks through the extensive Eskdale Reserve are all an easy stroll away.

Whether it's the morning coffee, lunchtime feasts, or time to dine and unwind, you're spoilt for choice with local favourites such as Little Things, The Postman's Leg and Paasha, plus plenty of fast food options that are close by.

So if value, flexibility, and a lifestyle setting is important to you, then get in touch now, This is an opportunity that won't be around for long! Need more information then you… Better Call Paul, or Fleur today.

Auction: 11:00am, Tuesday 3rd February 2026 In Rooms, Ray White Glenfield, Glenfield Mall (unless sold prior). You can watch the auction live here rwcarpenterrealty.co.nz...
Check out whether you can get fibre internet
Meet your new neighbours on Neighbourly