Ray White Town and Lifestyle

Ray White provides a broad range of real estate services from selling your property to property management. Visit our website to see over 12,000 properties on display.

We are a family owned business. When you choose Ray White, you are choosing over 100 years of experience and a name you can trust. We guarantee it!

Contact us to find out how Ray White can help you when it comes to property.

Ray White Rolleston
Town & Lifestyle Real Estate Ltd Licensed (REAA 2008)

Real Estate Agents

Ray White Town and Lifestyle
Ray White Town and Lifestyle
Suite 10
70 Rolleston Drive
Rolleston 7614
Listing #:
RLL32660
Listed:
65 days ago

$1,099,000

Top Spec, Great Location, Due March '26

10 Fairmaid Street, Lincoln, Selwyn
Residential House
bedroom
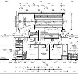
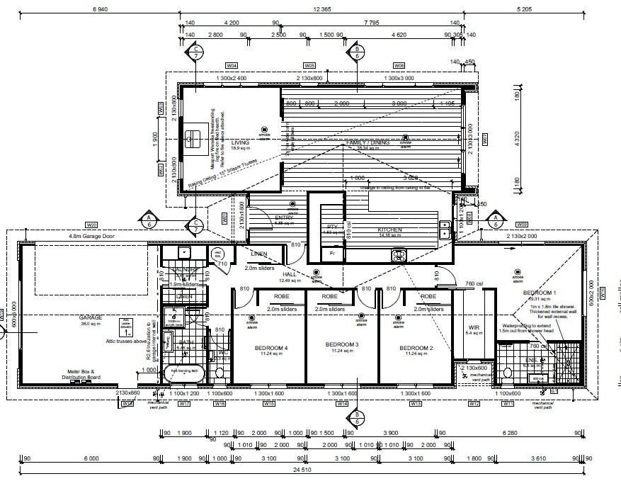
4 Bedrooms
bathroom
2 Bathrooms
carparkgarage
2 Car Garages
floorarea
235m2 Floor Area
landarea
611m2 Land Area
About this property
10 Fairmaid Street, Lincoln - Brand New House & Land Package
Estimated Completion: March - 2026

Step into style, comfort, and effortless living with this beautifully designed new-build home and land package in the highly sought-after township of Lincoln - a community prized for its peaceful lifestyle, excellent schools, modern amenities, and easy commuting distance to Christchurch. Architecturally crafted with a focus on space, light, and quality finishes, this home offers superb modern living with premium features throughout.

Key Features:
- Designer kitchen with engineered stone benchtop complete with waterfall edge
- Double oven plus a walk-in pantry
- Brushed nickel tapware throughout kitchen, laundry, and bathrooms
- Barn doors leading to the lounge
- Ducted heating plus a log burner for all-season comfort
- Pitched ceilings in the main living areas, enhancing light and spaciousness
- Formal entrance-way
- Tiled ensuite + shower
- Kwila decking at both the entryway and outdoor entertainment area
- Premium flooring package:
- Vinyl hard flooring Moduleo Impress Stork 51282
- Carpet throughout in Cable Bay Solution Dyed Nylon - Feltex (Beech)
- Garage carpet included
- Attic storage with ladder
- Separate laundry room
- Two large linen cupboards

With construction underway and completion expected March-2026, this is your chance to secure a beautiful new home in one of Selwyn's most desirable communities. Enjoy modern living, premium finishes, and a superb location- all ready for you to make your own.

- For more information or to arrange a private viewing, please contact Caine Hopcroft on 0273301002 or Doug Marshall on 0278251147

- Work-ins with other agencies are welcome.

To view the property files, please copy and paste this link into your browser:
www.propertyfiles.co.nz... march
Check out whether you can get fibre internet
Meet your new neighbours on Neighbourly