RAINE & HORNE ALEXANDRA

Real Estate Agents

RAINE & HORNE ALEXANDRA
RAINE & HORNE ALEXANDRA
33b Tarbert Street
Alexandra
Listing #:
L37631873
Listed:
13 days ago

Tender

Lauder Hotel - Options Aplenty

3313 Lauder-Omakau Road, Lauder, Central Otago
Commercial Other
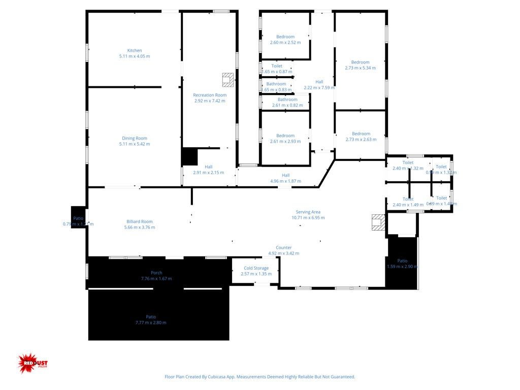
floorarea
260m2 Floor Area
landarea
5,944m2 Land Area
About this property
Sitting proud on Lauder's main road you'll find the Lauder Hotel, a quintessentially-kiwi rural pub. The hotel is still in operation serving locals and holiday makers alike a cold-one over the bar or hot meals in the spacious dining room. This property is being sold as land and buildings, so how you choose to run the place once it's yours is entirely up to you.

The expansive 5994sqm (approx.) block includes two fenced paddocks with frontage onto the main road also. The rear corner of the block backs on to a rest area adjacent to the popular Central Otago Rail Trail. Perhaps you can see yourself offering daytime coffee and snacks for hungry cyclists, or catering meals in the evening? You might wish to continue the bar's operation or change it's use entirely.

With four bedrooms, a private living area and commercial kitchen there's options aplenty. Roll your sleeves up and make this place your own rural paradise, either as a business venture or perhaps a private residence. There are also various out-buildings on this property. The land itself is comprised of five parcels, all on one title.

If you're inspired or intrigued, viewing is a must. Call Rhys or Renee today.

*Tender closing 22 January 2026 at 4pm (no prior offers)

**To be sold as land and buildings only, plus GST (if any)

Disclaimer: The floor area quoted has been sourced from Property Smarts and we are unable to verify its accuracy. Should the floor area be material to your decision to purchase this property, we recommend you carry out your own due diligence on this matter.


Please be aware that this information has been sourced from third parties. View our property information disclaimer here: raineandhorne.co.nz/property-disclaimer
Check out whether you can get fibre internet
Meet your new neighbours on Neighbourly