Ray White Napier

Ray White Hawke’s Bay is a top performing real estate agency with two offices located in Napier and Havelock North.

As a recipient of the Chairman’s Elite Business Leader Award, the highest honour a business can receive at Ray White, Hawke’s Bay is placed in the Top 3% in the Ray White Group (only 15 offices across our international group to have received this status) for business growth, market share, client satisfaction, property management and sales performance. In short, we know how to get the job done.

Leaders Hawkes Bay Ltd Licensed REAA (2008).

Real Estate Agents

Ray White Napier
Ray White Napier
60 Prebensen Drive
Onekawa
Napier 4110
Listing #:
HVN32108
Listed:
23 days ago

Auction

Wed 10th Dec 1:00pm

Mortgagee Auction

42 Margate Avenue, Flaxmere, Hastings
Residential House
bedroom
2 Bedrooms
bathroom
1 Bathroom
carparkgarage
2 Car Garages
landarea
814m2 Land Area
About this property
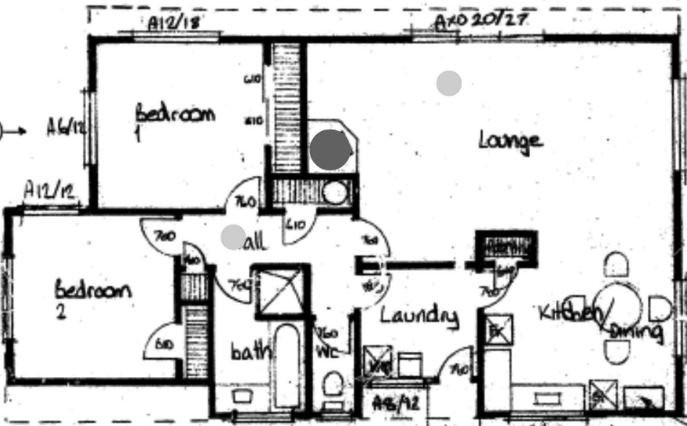
Built in 1983, this home consists of two bedrooms, one bathroom and an open-plan living area. The partially fenced 814 sqm (more or less) section includes a concrete driveway leading to a double garage. One door away is Margate Avenue Reserve, a great spot for children to play. The larger Chatham Park is close by. This is an excellent opportunity for savvy investors. RT HBH2/533.

Auction to be held at Ray White, 17 Havelock Road, Havelock North at 1:00pm Wednesday 10th December 2025.

This property is being sold by Mortgagee Auction or without a price and therefore a price guide cannot be provided. The website may have filtered the property into a price bracket for website functionality purposes. Whilst every effort has been made to ensure the accuracy of information contained about this property, it does not constitute any warranty or representation by the vendor or agent. All information contained herein is gathered from sources we consider to be reliable. All interested parties must solely rely on their own inspections, enquiries and searches with all relevant authorities.

Sun 7th Dec 1:00pm ~ 1:30pm

Check out whether you can get fibre internet
Meet your new neighbours on Neighbourly