Ray White Kemeys Brothers

The Directors Rupert and Elliot Kemeys, although proud to be among the youngest Real Estate company owners throughout Australasia, are more satisfied with the New Zealand markets acceptance of the need for enthusiastic, focused and technologically aware salespeople. Call us today for all Residential sales, commercial sales, residential management, commercial management and development opportunities.

Real Estate Agents

Ray White Kemeys Brothers
Ray White Kemeys Brothers
337 Jackson Street
Petone
Lower Hutt 5012
Listing #:
LWH34927
Listed:
27 days ago

By Negotiation

Rare Development Opportunity!

32 Raukawa Street, Stokes Valley, Lower Hutt
Other
landarea
1,178m2 Land Area
About this property
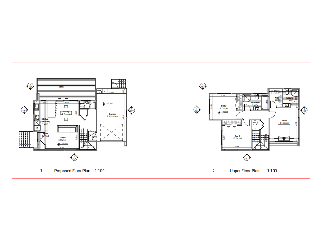
A change in the owners' plans brings you this prime, flat 1178sqm (more or less) section on highly sought-after Raukawa Street, Lower Hutt. Complete with approved resource consent for six standalone, 3-bedroom homes, this is your chance to hit the ground running.

Each thoughtfully designed home features:

- Master suite with ensuite and walk-in wardrobe
- Spacious, open-plan kitchen, dining, and living areas
- Internal-access garage and private decked outdoor space

Perfectly positioned in a high-demand location, close to public transport, local amenities, and surrounded by quality homes, this site offers an exceptional turnkey development opportunity.

Don't wait, opportunities like this are rare. Your next project starts here!
Check out whether you can get fibre internet
Meet your new neighbours on Neighbourly