Ray White Albany - Realty Insight

Ray White provides a broad range of real estate services from selling your property to property management. Visit our website to see over 12,000 properties on display.

We are a family owned business. When you choose Ray White, you are choosing over 100 years of experience and a name you can trust. We guarantee it!

Contact us to find out how Ray White can help you when it comes to property.

Ray White Albany
Ideal Real Estate Ltd Licensed REAA(2008)

Real Estate Agents

Ray White Albany - Realty Insight
Ray White Albany - Realty Insight
27C William Pickering Drive
Rosedale
Auckland 0632
Listing #:
ABY32644
Listed:
144 days ago

Urgent sale for 1,300,000

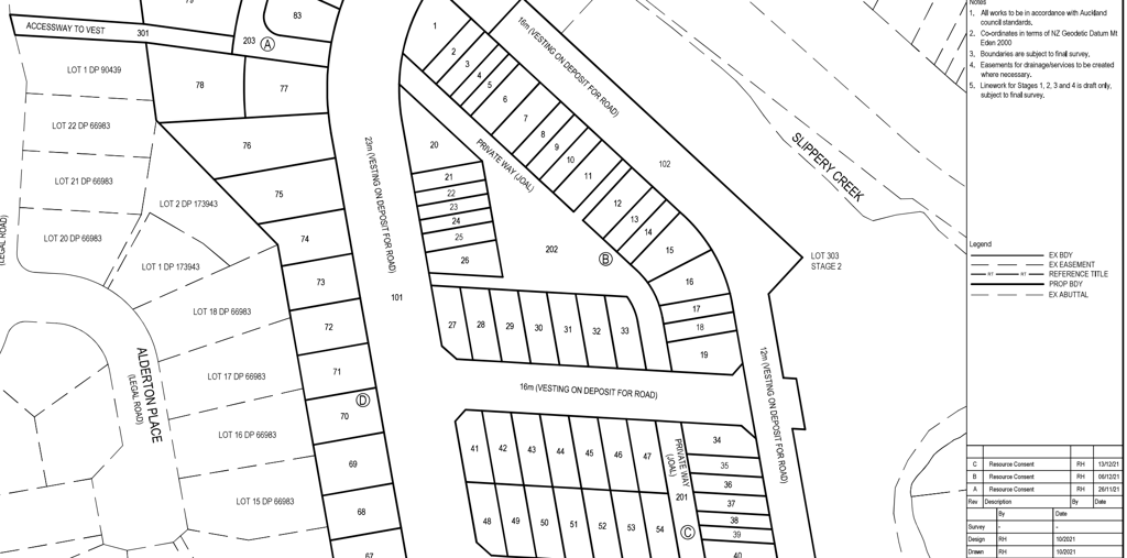
Prime Development Fully Approved Lots in Bellfield

6/29 Bellfield Road, Papakura, Papakura
Other
About this property
Urgent Sale, settle in Feb, 2026

Resource Consent has been approved to build on these fantastic 4 lots, being sold altogether. This is a great opportunity for a builder/developer to reap the rewards.

All contributions included for individual sites, this includes the infrastructure growth charge, per lot.

Titles due in late 2025 or early 2026 - start the building consent process now!

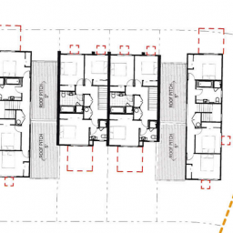
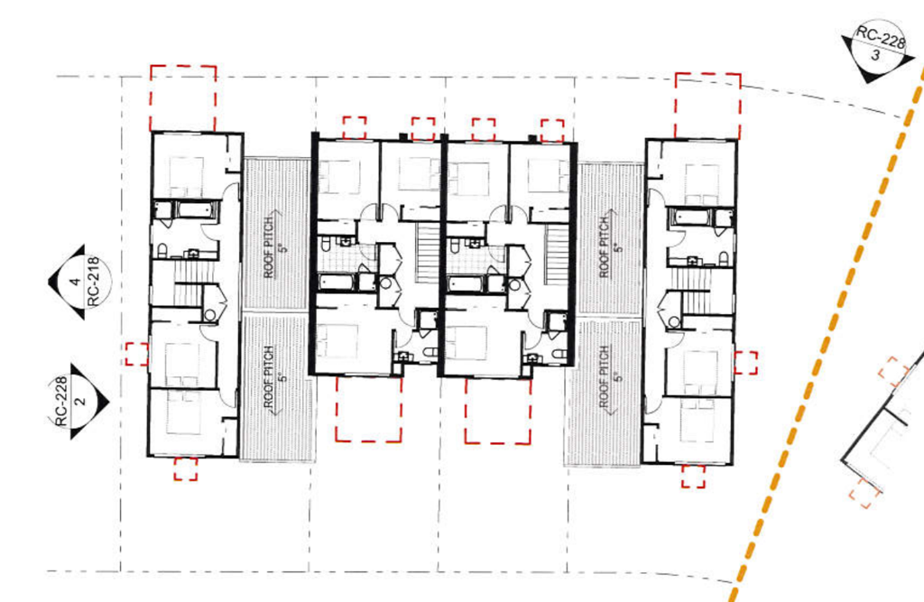
Two units with 4 bedrooms, 3 bathrooms, single garage + parking space;
Two units with 3 bedrooms, 2.5 bathrooms, double parking spaces;

The 4-bedroom units are 170 square meters, and the 3-bedroom units are 130 square meters.

Located close to the underway CostCo and soon to be biggest shopping centre in NZ! Bellfield Estate is a brand new, family-focused development located next to Opaheke Park in Papakura. Designed with community in mind, it boasts lush landscaping, modern architecture and safe, pedestrian friendly streets.

Bellfield Estate is an attractive choice for many buyers. It's surrounded by business precincts, including Red Hill and a bustling town centre on Great South Road, it's a short drive to Ardmore Airport, Manukau City and Highbrook Business Park and Auckland CBD is only half an hour away by car or a pleasant commute by bus or train.
Check out whether you can get fibre internet
Meet your new neighbours on Neighbourly