Ray White Feilding

Ray White provides a broad range of real estate services from selling your property to property management. Visit our website to see over 12,000 properties on display.

We are a family owned business. When you choose Ray White, you are choosing over 100 years of experience and a name you can trust. We guarantee it!

Contact us to find out how Ray White can help you when it comes to property.

Ray White Feilding
Real Estate House Manawatu Ltd Licensed (REAA 2008)

Real Estate Agents

Ray White Feilding
Ray White Feilding
56 Stafford Street
Feilding 4702
Ray White Palmerston North
188A Broadway Avenue
Palmerston North 4410
Listing #:
PNO31300
Listed:
52 days ago

Buyer Enquiry Over $899,000

Hiwinui Executive Family Lifestyle

235D Watershed Road, Hiwinui, Manawatu
Other
bedroom
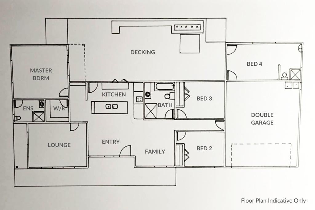
4 Bedrooms
bathroom
3 Bathrooms
carparkgarage
2 Car Garages
floorarea
195m2 Floor Area
landarea
3,727m2 Land Area
About this property
The Vendors have firmly set their sights on their next adventure - is it your turn to enjoy this gorgeous lifestyle?

Set on just under an acre, this 195m2 home offers space and exceptional lifestyle living with an easy commute to town - yes this property does tick all the boxes! The friendly Hiwinui community feels like a wonderfully rural spot yet is only minutes from Palmerston North City.

The current owners have thoughtfully and tastefully updated the home sparing no expense. From custom polished concrete floors to expansive new outdoor decking and the addition of 21 solar panels, every detail has been considered for both comfort and efficiency. Enjoy low power bills all year round - so go ahead and keep the Spa running with no worries!

Features:
• Open plan dining/living area with sun drenched ranch sliders
• Modern kitchen with bifold windows and access directly opening to the deck - perfect for summer entertaining
• Versatile room setup allowing 3-5 bedrooms - however you wish to configure the layout, including a master with ensuite and walk-in wardrobe.
• Private back room has its own external access and bathroom amenities - ideal for extended family, guests, or even a perfect space for a quiet work-from-home office.
• Additional separate family lounge (or potential extra bedroom)
• Convenient gas heating and HRV system for warmth and comfort

Outdoors, the property is an entertainer's haven as well as an excellent setup for the kids pets, complete with two animals shelters, a generous double-plus garage and a garden shed for storage.

Hiwinui is one of Palmerston North's most sought-after rural communities (with its own fantastic school) and it's easy to see why! Here is your opportunity to secure a modern, much loved lifestyle property in a tightly held location.

I can't wait to show you this beautiful home - please contact Kelly at any time on 021 478 889.

For further information, please visit: rwpalmerstonnorth.co.nz...

Tue 9th Dec 4:45pm ~ 5:30pm

Check out whether you can get fibre internet
Meet your new neighbours on Neighbourly