Ray White Flat Bush

Ray White provides a broad range of real estate services from selling your property to property management. Visit our website to see over 12,000 properties on display.

We are a family owned business. When you choose Ray White, you are choosing over 100 years of experience and a name you can trust. We guarantee it!

Contact us to find out how Ray White can help you when it comes to property.

Ray White Flat Bush
Mountfort Estate Agents Ltd Licensed (REAA 2008)

Real Estate Agents

Ray White Flat Bush
Ray White Flat Bush
Unit 25
123 Ormiston Road
Flat Bush
Auckland 2016
Listing #:
DMR31676
Listed:
131 days ago

By Negotiation

Comfort & Convience

30A Ferguson Street, Manurewa East, Manukau City
Residential House
bedroom
3 Bedrooms
bathroom
2 Bathrooms
ensuite
1 Ensuite
toilet
1 Toilet
carparkgarage
1 Car Garage
floorarea
131m2 Floor Area
landarea
159m2 Land Area
About this property
This stunning, newly constructed family home offers a perfect blend of modern living and comfort, making it an ideal choice for families.

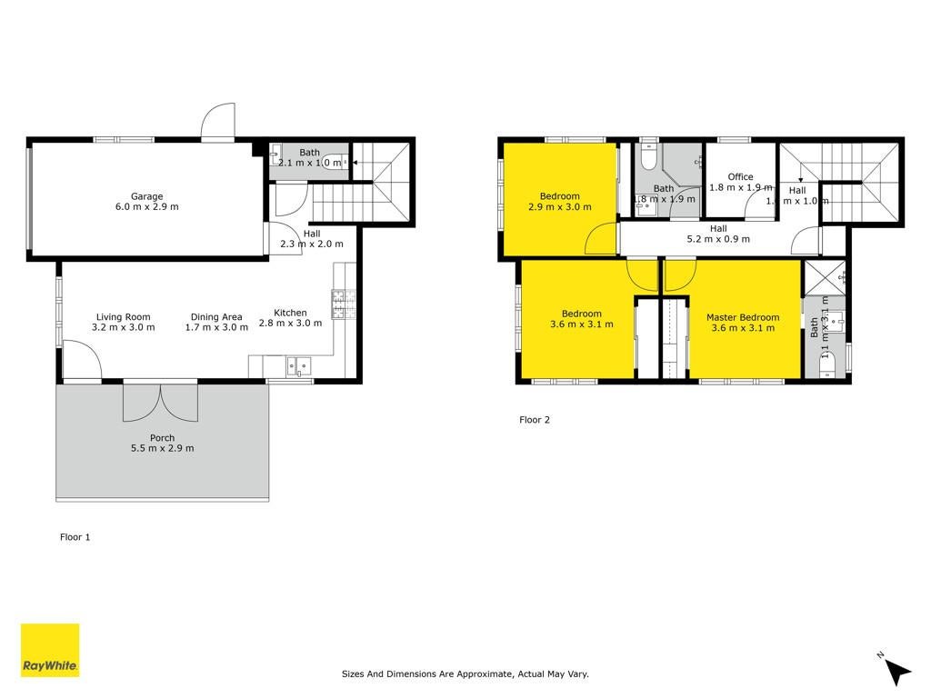
Ready for immediate possession this two level standalone & roadfront family home features

• Three double bedrooms with wardrobes
• Master with an ensuite
• Powder room on the ground floor
• Family bathroom
• Study / prayer room on first floor
• Open plan living with an indoor outdoor flow to entertainment area
• Single internal access garage
• Double glazed windows
• LED lights
• 2.7 stud height ceiling on the ground floor
• Brick & weatherboard construction
• Fisher & Paykel appliances
• Gas hot water & cooking (bottled)
• 10 year Master Builder Warranty

Located right opposite the Te Mahia Train Station, walking distance to schools, shops and Countdown supermarket, easy access to arterial routes makes access a breeze

This spacious road front family home is sitting on 159 sqm (mol) of freehold land and has a build area of 131 sqm (mol).

To know more or to book a private viewing, please call Sunny Sareen on 022 064 7171.




#ItsYourExperienceThatMatters
Check out whether you can get fibre internet
Meet your new neighbours on Neighbourly