Ray White Town and Lifestyle

Ray White provides a broad range of real estate services from selling your property to property management. Visit our website to see over 12,000 properties on display.

We are a family owned business. When you choose Ray White, you are choosing over 100 years of experience and a name you can trust. We guarantee it!

Contact us to find out how Ray White can help you when it comes to property.

Ray White Rolleston
Town & Lifestyle Real Estate Ltd Licensed (REAA 2008)

Real Estate Agents

Ray White Town and Lifestyle
Ray White Town and Lifestyle
Suite 10
70 Rolleston Drive
Rolleston 7614
Listing #:
RLL32551
Listed:
129 days ago

$749,000

Your Brand New Home Awaits!

1/130 Scout Street, Rolleston, Selwyn
Residential House
bedroom
3 Bedrooms
bathroom
2 Bathrooms
carparkgarage
2 Car Garages
floorarea
166m2 Floor Area
About this property
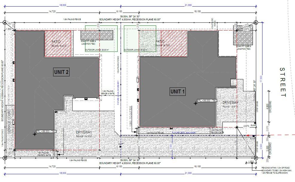
Architecturally designed unit located in the fast selling Broadfield Grange subdivision, just minutes from Rolleston town centre and a short walk to the local Primary School and park making it a great place to raise a family or commute daily to Christchurch City.

Features:
• 166m2 floor area (approx.)
• 400m2 Land Area approx ( pending subdivision approval)
• Master with en-suite and oversized wardrobe, other two bedrooms with built in wardrobes
• Family bathroom with separate toilet
• Open plan living and dedicated dining space
• Recessed laundry space in garage
• Landscaping includes driveway, patios, top soil and seeded grass
• Slider leading out to private patio, overlooking the easy-care section
• Completing this package a double internal access garage

• For more information or to arrange a private viewing, please contact Caine Hopcroft on 0273301002 or Holly Partridge on 0277771270

• Work-ins with other agencies are welcome.

To view the property files, please copy and paste this link into your browser:
www.propertyfiles.co.nz...
Check out whether you can get fibre internet
Meet your new neighbours on Neighbourly