Ray White Kerikeri

Ray White provides a broad range of real estate services from selling your property to property management. Visit our website to see over 12,000 properties on display.

We are a family owned business. When you choose Ray White, you are choosing over 100 years of experience and a name you can trust. We guarantee it!

Contact us to find out how Ray White can help you when it comes to property.

Ray White Kerikeri
Hewson Real Estate Ltd Licensed (REAA 2008)

Real Estate Agents

Ray White Kerikeri
Ray White Kerikeri
74 Kerikeri Road
Kerikeri 0230
Listing #:
KRK31260
Listed:
75 days ago

Tues 16 Dec 2025, 12pm (unless sold prior)

Tue 16th Dec 12:00pm

OWNER REQUIRES CASH FLOW

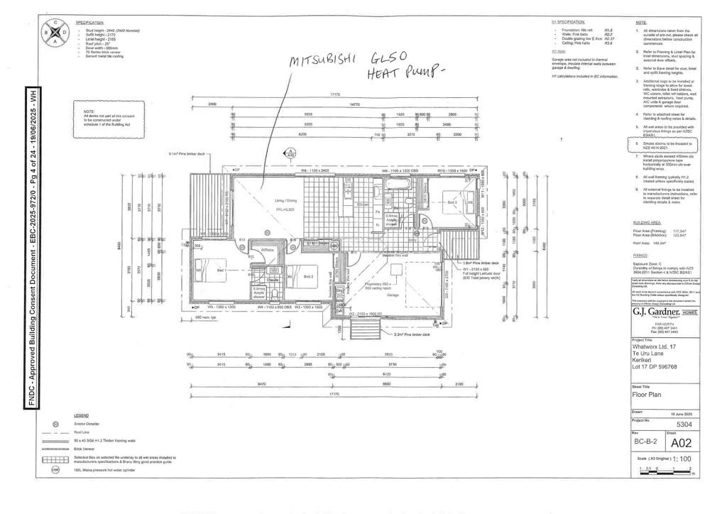
14 Te Uru Lane, Kerikeri, Far North
Residential House
bedroom
3 Bedrooms
bathroom
2 Bathrooms
carparkgarage
1 Car Garage
landarea
339m2 Land Area
About this property
SHORT NOTICE AUCTION
Brand new - no waiting needed. This lovely G J Gardner home is ready for immediate occupancy.

Perfect for those seeking modern living with a practical, easy-care section, giving you more time to relax and less time on garden maintenance. The internal access garage provides convenience and security, and the well-thought-out layout ensures comfortable living.

The location is a major highlight, you'll be just a short distance from Kerikeri's central shopping centre and all local amenities, making errands and weekend trips to cafes a breeze.

Property to be sold by Auction: Tuesday 16 December 2025, 12pm at 74 Kerikeri Road, Ray White Kerikeri (unless sold prior).

Sat 13th Dec 10:00am ~ 10:45am

Sun 14th Dec 10:00am ~ 10:45am

Check out whether you can get fibre internet
Meet your new neighbours on Neighbourly