Berryman Real Estate Ltd

A Family Based Real Estate Agency established in 1951, with a personal touch to assist with all your real estate needs.

Real Estate Agents

Berryman Real Estate Ltd
Berryman Real Estate Ltd
3049 Great North Road
New Lynn
Auckland 0600
Listing #:
BER11111
Listed:
160 days ago

$null

lease 1, lease 2 or lease all 3!.

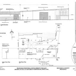
3126 Great North Road, New Lynn, Auckland
Industrial / Warehouse
floorarea
350m2 Floor Area
About this property
Centrally located factory unit, complete with a user-friendly roller door feature, a composite of resilient concrete, and timber flooring. This space is tailored to cater to the growth of small businesses, offering an ideal incubator for your success, with many local businesses nearby.

To anticipate your business expansions or bespoke setup requirements, you have the option of flexibility with leasing additional adjoining spaces. Imagine a streamlined, cooperative workspace for your team—all consolidated at a single central hub.

Step into a realm of opportunities tailored specifically for you.
Check out whether you can get fibre internet
Meet your new neighbours on Neighbourly