Ray White Wairarapa

"It's always about customer service."

At Ray White, we put you, the customer, at the heart of everything we do. We aim for 10/10 service for every client, every time.

Our agents live and work in their local neighbourhood, so they know the schools, the best cafe’s, the hidden walking trails and the most convenient shopping centres.

Ray White Leaders have always maintained strong relationships with our local communities, therefore our agents have the knowledge and expertise to inspire buyers to imagine a lifestyle in your property and to encourage the best result.

Ray White Wairarapa
Leaders In Real Estate (1987) Limited Licensed (REAA 2008)

Real Estate Agents

Ray White Wairarapa
Ray White Wairarapa
111 Chapel Street
Masterton 5810
Listing #:
MST32562
Listed:
99 days ago

Buyer Enquiries Over $799,500

Superb Investment Opportunity! BEO $799,500

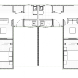
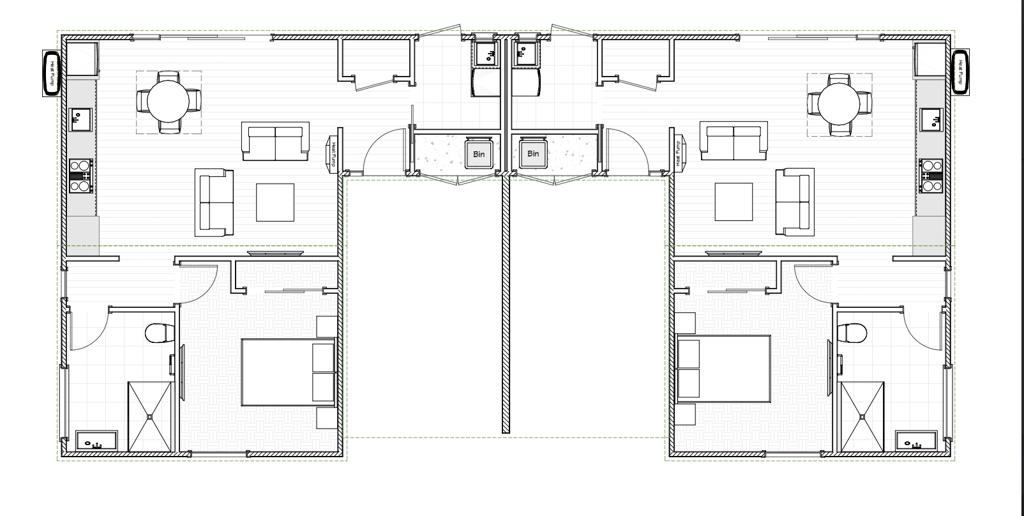
4/2 Tuatahi Avenue, Solway, Masterton
Residential House
bedroom
2 Bedrooms
bathroom
2 Bathrooms
toilet
2 Toilets
carparkcovered
2 Covered Car Parks
floorarea
129m2 Floor Area
landarea
482m2 Land Area
About this property
Located in popular Tuatahi Avenue we are pleased to offer this fantastic brand new* investment option by Belham Developments to the market! The two semi-attached units (on the same title) each feature a flowing floor plan with one large bedroom, a generous tiled bathroom, designer kitchen by award winning Workshop Designs, and a spacious living room that flows out to a private patio. The professionally landscaped easy-care section has an artificial lawn for extra low maintenance. Added extras include large laundry room, enclosed carport + off-street car park, full insulation & heat pump, fantastic storage, curtains and blinds included and a popular Solway location. This would make the perfect investment option with a current rental assessment of $900 per week ($450 per unit) giving a 5.85% gross rental return.

As with all Belham Developments' homes, you have the peace of mind of a 10-year transferable Master Build Guarantee.

For further information or to arrange a private viewing then get in touch with us.

Buyer Enquiries Over $799,500
under construction, images are renders. Expected completion date December 2025

Sun 7th Dec 12:00pm ~ 12:20pm

Check out whether you can get fibre internet
Meet your new neighbours on Neighbourly