RWC Christchurch

RWC - Raine Blackadder Ltd MREINZ specialises in the selling of commercial, industrial, and investment properties. Based in Christchurch, we focus on the greater Canterbury and South Island area, but regularly work with properties throughout New Zealand and buyers from around the globe. Being a specialist commercial, industrial sales and leasing team, we are particularly proud of our success.

We believe that this has been achieved through our enthusiasm, innovative team approach to marketing and commitment to the Ray White tradition of excellent client service.

Real Estate Agents

RWC Christchurch
RWC Christchurch
76 Hereford Street
Christchurch Central
Christchurch 8011
Listing #:
CCM31692
Listed:
223 days ago

For Lease: By negotiation + GST + outgoings

Brand New Retail Premises

Lincoln, Canterbury
Commercial Other
floorarea
192m2 Floor Area
About this property
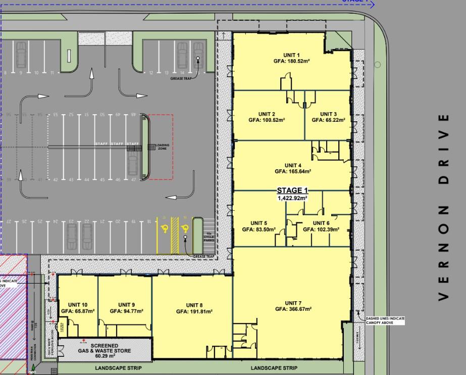
Opportunity to lease brand new retail and business premises in the rapidly growing township of Lincoln.

Well located near the New World Supermarket and within the growing business hub that Vernon Drive is quickly becoming, as well as being in close proximity to the Lincoln University campus and its 5800* students.

Stage 1 is completed and is now ready for occupation.

Only 3 sites remain. Sizes range from 90m2* - 192m2* with possibly larger floor plates available up to 1,500m2* in Stage 2, which is due for completion in December 2026*.

Let us know what you want, so we can see if your business will fit within the growing tenancy mix.
(* approx.)

For Lease: By negotiation + GST + outgoings

Call agent Paula Raine 027 221 4997 for further information and to arrange a viewing.

rwcchristchurch.co.nz...
Check out whether you can get fibre internet
Meet your new neighbours on Neighbourly