Ray White St Heliers

Ray White provides a broad range of real estate services from selling your property to property management. Visit our website to see over 12,000 properties on display.

We are a family owned business. When you choose Ray White, you are choosing over 100 years of experience and a name you can trust. We guarantee it!

Contact us to find out how Ray White can help you when it comes to property.

Real Estate Agents

Ray White St Heliers
Ray White St Heliers
10 Polygon Road
St Heliers
Auckland 1071
Listing #:
STH31782
Listed:
131 days ago

Asking Price $2,100,000

Superior Low Maintenance Beach Lifestyle

1 Ryanville Lane, Saint Heliers, Auckland City
Residential House
bedroom
3 Bedrooms
bathroom
2 Bathrooms
carparkgarage
2 Car Garages
floorarea
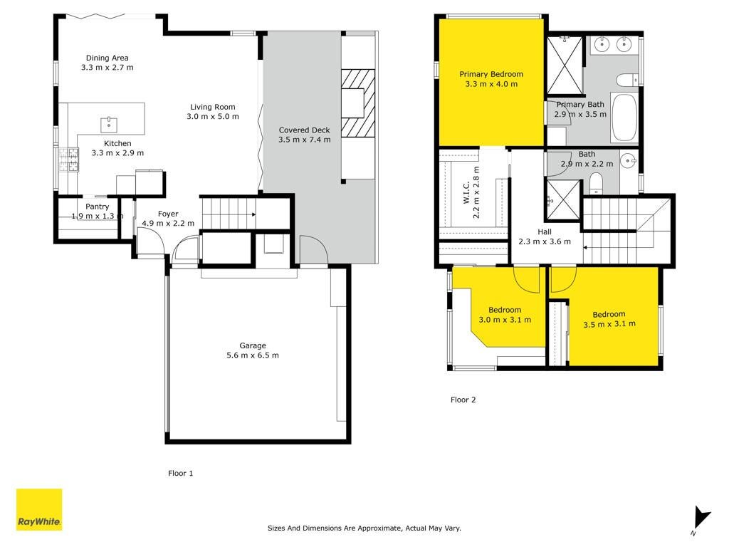
153m2 Floor Area
landarea
238m2 Land Area
About this property
This exciting high-quality townhouse on a tiny exclusive cul de sac has been impeccably maintained since constructed in 2021. Subsequently receiving some highly specced upgrades the well located home in a desirable beachside neighbourhood would equally suit families, out of towners, downsizing locals, and busy professionals.

The 153 sqm (approx.) layout maximises its secluded orientation with alfresco zones accessed via banks of bifolds. A state-of-the-art remote-controlled Louvretech roof with weather sensors protects an intimate chillout haven with built-in fireplace, lumber storage bays, and barbecue perfect for all seasons entertaining. Open plan living and dining areas are anchored by Timber flooring while plantation shutters, dreamy drapes and LED lighting instil a sophisticated ambiance. Italian marble makes a dazzling statement in a Bosch-equipped designer kitchen with matching scullery integrating ample cabinetry and shelving. A conveniently located powder room is tucked under the stairs, while the upstairs bathrooms feature sleek porcelain tiles, offering both style and practicality. The sumptuous ensuite now includes freestanding bath, along with shower, dual vessel basins and LED mirrors. The master bedroom dressing room boasts custom makeup station and deftly curated wardrobe capacity. Carpeted bedrooms have one currently as an office but easily reverted if desired. Internal access double garaging is carpeted while the double-glazed home has three heat pumps and underfloor heated bathrooms for year-round comfort.

The freehold 238 sqm (approx.) section frees up your precious spare time to play in the bays or lock and leave town. Zoned for Kohimarama and St Ignatius Schools and Glendowie and Baradene Colleges and a short walk from beaches, Madills Farm Reserve, and Dingle Dell, this special property is a swift CBD commute too.

Viewings By Appointment. Contact the agents.

For more information, call ANYA KHOMINICH at 027 654 3006 or WAYNE MAGUIRE at 0274 22 33 77. We work with all agencies.
Check out whether you can get fibre internet
Meet your new neighbours on Neighbourly