Ray White Metro Halswell
488 Sparks Road
Halswell
Christchurch 8025
Listing #:
MCN38121
Listed:
143 days ago

Price by Negotiation

Pre-Completion Offer: Free Blinds & Healthy Homes

117C Edinburgh Street, Spreydon, Christchurch
Townhouse
bedroom
2 Bedrooms
bathroom
2 Bathrooms
toilet
2 Toilets
carparkoffstreet
1 Offstreet Car Park
About this property
Don't miss your chance to secure one of these superbly located townhouses, offering the perfect blend of modern living and everyday convenience. Positioned close to Barrington Mall, local parks, and just a 10-minute drive to the city centre, this is an opportunity not to be missed. Contact Jiby Thomas on 022 417 9858 for more information today!

• Completion is estimated for early November 2025
• Fix-priced contract - secure with 10% deposit
• Freehold titles - no body corp fees!

Inside, the home is thoughtfully designed for flexibility and comfort. Upstairs, you'll find two generously sized bedrooms, including a master with its own sleek ensuite. A second well-appointed bathroom ensures comfort and convenience for family or guests. The open-plan kitchen, dining and living space flows seamlessly to a private, landscaped courtyard-perfect for relaxing or entertaining. A dedicated car park right at your doorstep completes the package.

To download the property files, please visit propertyfiles.co.nz...

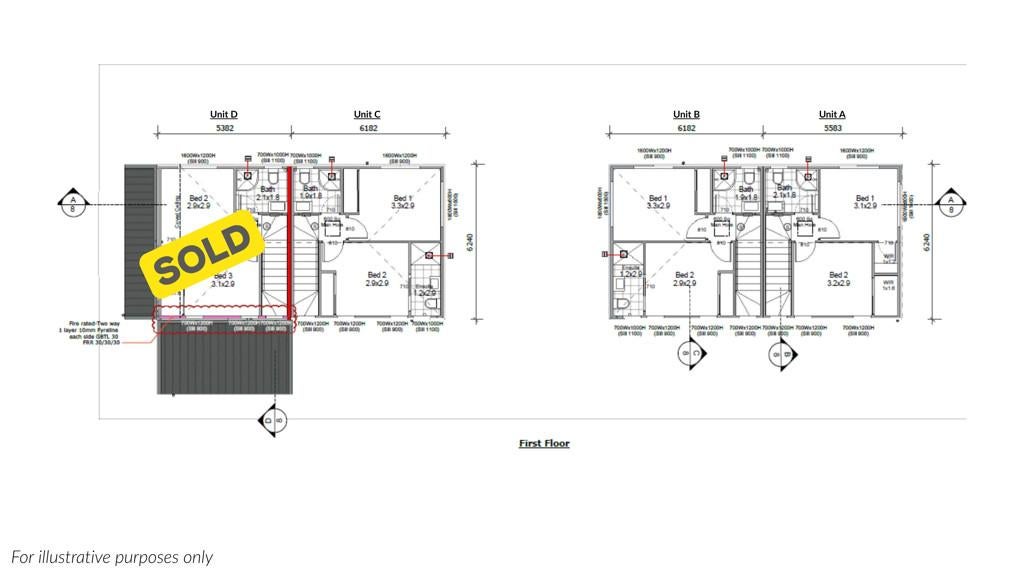
LOT A | 2 BED, 1 BATH, 2 TOILET, 1 CARPARK
LOT B | UNDER OFFER
LOT C | 2 BED, 2 BATH, 2 TOILET, 1 CARPARK
LOT D | SOLD

Sun 14th Dec 1:00pm ~ 1:15pm

Check out whether you can get fibre internet
Meet your new neighbours on Neighbourly