Fletcher Living.

Other

Fletcher Living.
Fletcher Living.
801 Great South Road
Mount Wellington
Auckland
Listing #:
L31411574
Listed:
220 days ago

$989,000

New Build 3 Bed Home - Park Green Karaka

51 Parkmore Drive, Karaka, Franklin
Residential House
bedroom
3 Bedrooms
bathroom
2 Bathrooms
ensuite
1 Ensuite
toilet
2 Toilets
carparkgarage
1 Car Garage
carparkoffstreet
1 Offstreet Car Park
floorarea
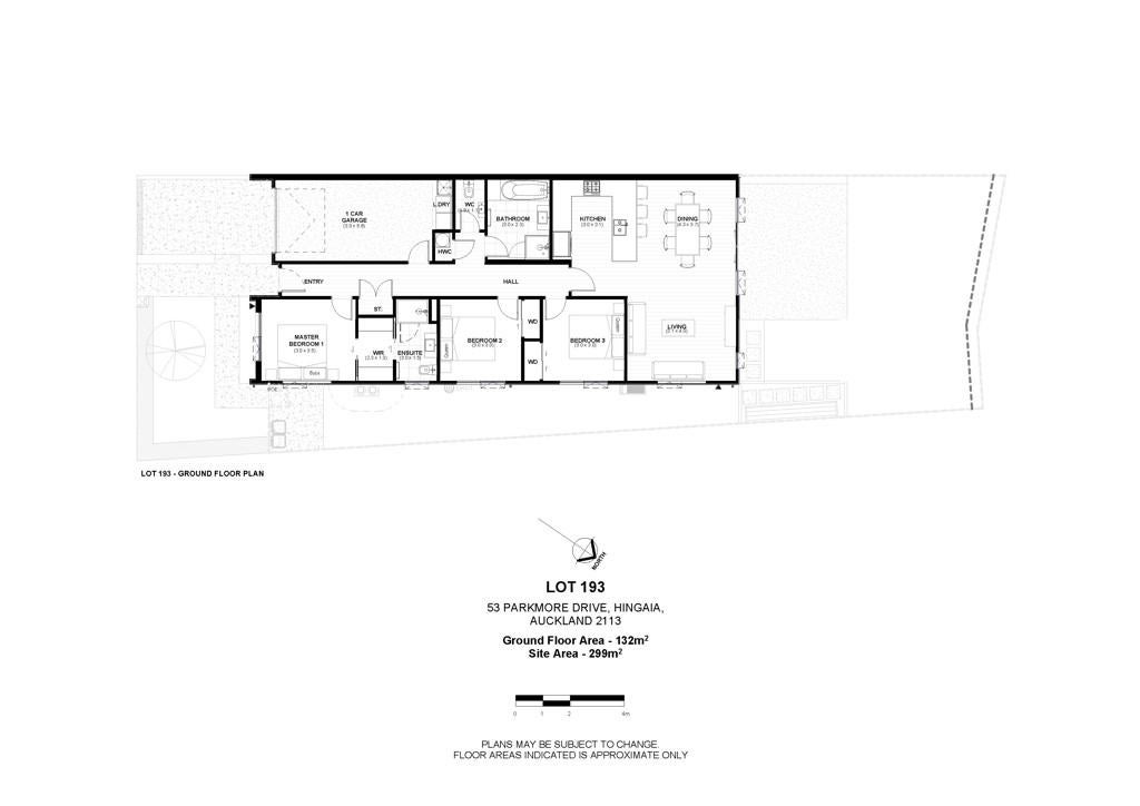
132m2 Floor Area
landarea
323m2 Land Area
About this property
Introducing Park Green, Karaka a stunning new location from Fletcher Living

Our Showhome is open 7 days a week from 10am-4pm on the corner of Parkmore Drive and Park Estate Road.
www.fletcherliving.co.nz...

Step into your ideal lifestyle in this brand new, sophisticated single-level home with three bedrooms, a contemporary designer kitchen and expansive open-plan living areas.

This home features a stylish kitchen, with quality appliances and Caeaserstone benchtops. The open plan spacious living and dining areas feature easy outdoor flow to the courtyard.

Featuring three spacious bedrooms, the master complete with ensuite and walk in wardrobe. Ample storage and a single garage complete the home.

Home features include:

3 bedrooms
2 bathrooms
Open plan living space
Single garage
Private outdoor garden with courtyard area
Floor to ceiling tiles to bathroom
Fully landscaped
Roller blinds installed
Heat pump
Security alarm system
Double glazing
Keyless entry
10 Year Master Build Guarantee

Venture outdoors and enjoy everything that this new suburb has to offer with a brand new primary school now open, beautiful inlet walking tracks, and a new planned neighbourhood centre.

Our Investor Ready Homes meet or exceed current Healthy Homes Standards.

Images used are either similar to, or an artist impression of the property made for marketing purposes only.
Check out whether you can get fibre internet
Meet your new neighbours on Neighbourly