Ray White Morris & Co Real Estate Limited
188 High Street
Waimakariri
Rangiora 7400
Listing #:
PGS30656
Listed:
283 days ago

$799,000

Just Completed and Waiting for Its First Owner!

14 Lintott Street, Kaiapoi, Waimakariri
Residential House
bedroom
4 Bedrooms
bathroom
2 Bathrooms
carparkgarage
2 Car Garages
floorarea
175m2 Floor Area
landarea
368m2 Land Area
About this property
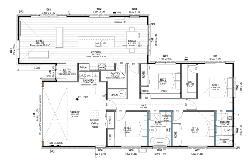
BRAND NEW AND READY TO MOVE IN!

Why compromise when you can have it all? This stunning new four-bedroom home in Beach Grove delivers outstanding value without sacrificing style or space.

Thoughtfully designed to maximise natural light and indoor-outdoor flow, the open-plan kitchen, dining, and living area opens to a fully landscaped, private section, perfect for relaxed family living or entertaining guests. The master suite features a walk-in wardrobe and tiled ensuite, while the other additional double bedrooms are serviced by a well-appointed family bathroom.

Quality features throughout include:

Stone benchtop
Samsung appliances
Walk-in pantry
Tiled shower
Godfrey Hirst flooring
Internal access double garage

All this, while being close to the heart of Kaiapoi town centre and a short commute to Christchurch. You're also moments from beaches, rivers, cycling trails, kayaking spots, and golf courses, embracing the best of lifestyle and location.

Don't miss your opportunity to secure incredible value in a fast-growing community.

For further information get in touch with Tony today!

Sun 29th Mar 1:15pm ~ 1:45pm

Check out whether you can get fibre internet
Meet your new neighbours on Neighbourly