Hills Real Estate Limited

Hills Real Estate

With experience spanning over a decade Rickhil Prakash takes his real estate and entrepreneurship one step further as the Director of the Hills Real Estate.

Rickhil has a proven track record of success in real estate and has become a polarising figure within the industry not only in Auckland but also nationwide throughout New Zealand.

With his handpicked team of licensed salespersons Hills Real Estate is determined to provide you with the highest level of service and knowledge when it comes to helping you buy or sell property in the increasingly competitive Auckland market.

Find homes for sale in Auckland, or list your property with the help from the leading real estate experts at Hills Real Estate.

Your Property Ninja

Real Estate Agents

Hills Real Estate Limited
Hills Real Estate Limited
123A Ormiston Road
Flat Bush
Auckland 2019
Listing #:
L34646116
Listed:
303 days ago

Price on Application

Neat 3 bedroom in Weymouth

1/544 Weymouth Road, Weymouth, Manukau City
Residential House
bedroom
3 Bedrooms
bathroom
1 Bathroom
carparkgarage
1 Car Garage
carparkoffstreet
1 Offstreet Car Park
floorarea
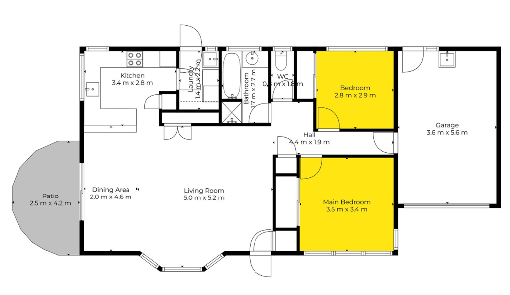
112m2 Floor Area
About this property
This well-appointed 3 -bedroom home offers more than just comfort - it brings everyday convenience to your doorstep. The open-plan living and dining area is light-filled and spacious, complemented by a heat pump for year-round comfort and a standalone oven ready for home-cooked meals.

Property Features:
• Low maintenance and reliable
• Fully renovated throughout - move-in ready with modern finishes
• Single-level layout - ideal for families, downsizers or tenants
• 3 bedrooms, 1 bathroom - functional and well-proportioned
• Internal access garage - secure and convenient
• Approx. 112sqm floor area - spacious and easy to maintain
• Cross-lease title - with designated exclusive areas
• Fenced outdoor area - great for kids, pets, and entertaining
• Road frontage - good street appeal and easy access

PLEASE NOTE: Specified floor and land area sizes have been obtained from sources such as Property Guru, Auckland Council (LIM) or Title documents. They have not been measured by the Salesperson or Hills Real Estate Limited. We recommend you seek your own independent legal advice if these sizes are material to your purchasing decision.

Check out whether you can get fibre internet
Meet your new neighbours on Neighbourly