RWC Christchurch

RWC - Raine Blackadder Ltd MREINZ specialises in the selling of commercial, industrial, and investment properties. Based in Christchurch, we focus on the greater Canterbury and South Island area, but regularly work with properties throughout New Zealand and buyers from around the globe. Being a specialist commercial, industrial sales and leasing team, we are particularly proud of our success.

We believe that this has been achieved through our enthusiasm, innovative team approach to marketing and commitment to the Ray White tradition of excellent client service.

Real Estate Agents

RWC Christchurch
RWC Christchurch
76 Hereford Street
Christchurch Central
Christchurch 8011
Listing #:
CCM31582
Listed:
259 days ago

Lease: By Negotiation + GST + outgoings

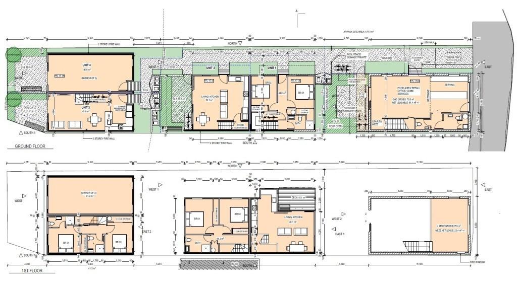
Brand New Retail/Office in Cashmere

27a Colombo Street, Cashmere, Christchurch
Retail
floorarea
93m2 Floor Area
About this property
Currently under construction is this brand new retail or office unit. Well located in a desirable location at the Cashmere end of Colombo St, between the "Z" petrol station and the Thorrington Shops.

Excellent street frontage to busy Colombo Street, the main street of NZ's second largest city, providing excellent signage opportunity and exposure to passing traffic.

This unit is made up of an open plan area of 70m2* on the ground floor plus 23.9m2* of mezzanine. Total area of 93.9m2*.
(* approx.)

Call sole agent Paula Raine 027 221 4997 for further information.

Lease: By Negotiation + GST + outgoings
Check out whether you can get fibre internet
Meet your new neighbours on Neighbourly