RWC Christchurch

RWC - Raine Blackadder Ltd MREINZ specialises in the selling of commercial, industrial, and investment properties. Based in Christchurch, we focus on the greater Canterbury and South Island area, but regularly work with properties throughout New Zealand and buyers from around the globe. Being a specialist commercial, industrial sales and leasing team, we are particularly proud of our success.

We believe that this has been achieved through our enthusiasm, innovative team approach to marketing and commitment to the Ray White tradition of excellent client service.

Real Estate Agents

RWC Christchurch
RWC Christchurch
76 Hereford Street
Christchurch Central
Christchurch 8011
Listing #:
CCM31552
Listed:
341 days ago

$93,700pa + GST + outgoings

Contemporary Offices on Montreal Street

Christchurch Central, Canterbury
Commercial Other
floorarea
277m2 Floor Area
About this property
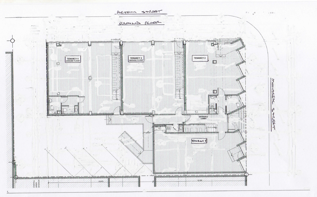
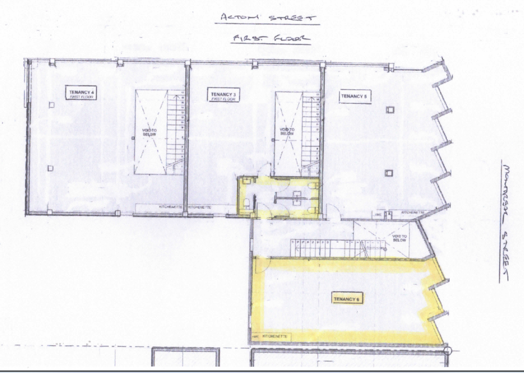
Prime city location fronting busy Montreal Street. These contemporary offices are available in this modern, substantially renovated and extended building.

Suites available include:

Suite 2, ground floor corner office space of 67m2* with the option of a car park;
Suite 3, ground floor office space of 146m2* including a mezzanine office area facing north onto Acton Street and comes with the option of a car park; and
Suite 6 being first floor office space of 64m2*.
Total area available up to 277m2*.

All offices have a sunny north-easterly aspect with street profile to Montreal St or Acton St*.

Take one or more suites to suit your space requirements.
(*approx.)

Call Victoria Muirhead at 027 255 5967 for further information.

Lease: $93,700.00pa + GST + outgoings (Units 2,3 & 6)

rwcchristchurch.co.nz...
Check out whether you can get fibre internet
Meet your new neighbours on Neighbourly