LJ Hooker Fairlie
75 Main Street
Fairlie 7925
Listing #:
RX4446722
Listed:
388 days ago

$260,000

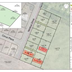
Sections Titled And Ready To Go!

Nimbus Drive Subdivision, Omarama, Otago
Land
landarea
700m2 Land Area
About this property
Welcome to Nimbus Drive an exclusive 12-lot subdivision adjacent to the Omarama Airfield.
All sections are now titled, ready for you to design your dream home. With three lots already sold, now is your chance to secure a fully serviced section in this sought-after location. Whether it is your holiday destination or to call home this subdivision is the right spot.

Set against a stunning alpine backdrop, this provides the perfect blend of tranquility and convenience, just minutes from Omarama's famous hot tubs, lakes, and outdoor adventures. Of course if you are a keen avaiator then this spot will not disappoint you either.

There are two sizes to choose from.
Lots 1 to 6 & Lot 8 are from 630m2 to 700m2. Priced from $260,000
Lots 11-12 are from 1215m2 to 1270m2 (including the driveways) Priced from $340,000

Lots 7 and 8 are Sold, Lot 10 is Under Contract.

Vendors are keen to move the sections on TODAY.

Give Team Twizel a call so they can discuss the merits of buying these sections today and you will also receive the property file.
Secure a section for the future as they wont last long at this price.
Check out whether you can get fibre internet
Meet your new neighbours on Neighbourly