Ray White Beach Haven

Ray White provides a broad range of real estate services from selling your property to property management. Visit our website to see over 12,000 properties on display.

We are a family owned business. When you choose Ray White, you are choosing over 100 years of experience and a name you can trust. We guarantee it!

Contact us to find out how Ray White can help you when it comes to property.

Ray White Beach Haven
Carpenter Realty Ltd Licensed (REAA 2008)

Real Estate Agents

Ray White Beach Haven
Ray White Beach Haven
350 Rangatira Road
Beach Haven
Auckland 0626
Listing #:
GLF31448
Listed:
2 days ago

Auction

Wed 25th Mar 4:00pm

Ultimate Family Living, Modern, Private & Spacious

196 Verbena Road, Birkdale, North Shore City
Residential House
bedroom
4 Bedrooms
bathroom
2 Bathrooms
carparkoffstreet
4 Offstreet Car Parks
landarea
1,171m2 Land Area
About this property
Step into a world where modern comfort meets the tranquil beauty of nature. This elevated, sunny family residence has been thoughtfully renovated to provide the ultimate lifestyle for those who value space, style, and serenity. Situated on a large 1,171 sqm (more or less) freehold section, this is a rare opportunity to secure a substantial landholding with a large backyard for the kids to play and plenty of room for pets to roam freely.

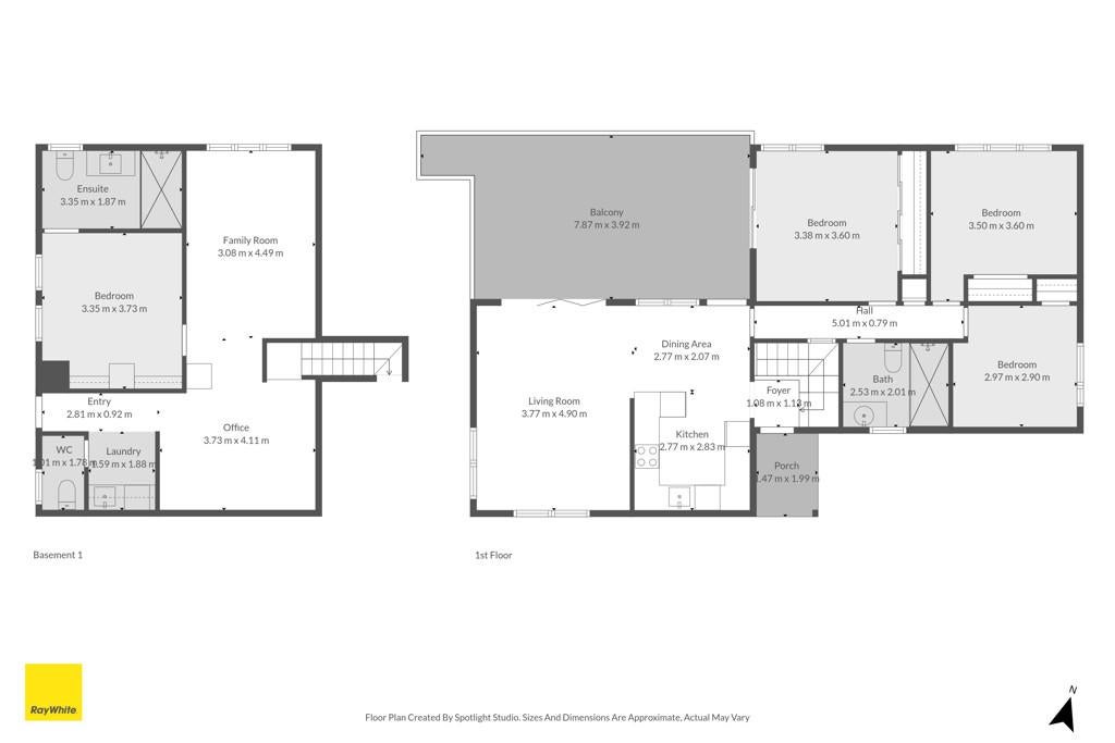
The heart of the home resides upstairs, where sunlight pours into the open-plan stylish kitchen, dining and living areas. Designed for effortless entertaining, the North facing living areas flow seamlessly to an expansive deck, boasting a beautiful, elevated private bush outlook. This is your prime position for witnessing amazing sunsets every evening or for enjoying your morning coffee in the fresh air outdoors while you listen to the birdsong. The master bedroom also enjoys direct access to this deck, allowing you to wake up to the peaceful surroundings. Three spacious bedrooms and a modern tiled family bathroom, with feature tiles and an oversized shower complete this level, ensuring comfort and functionality for the whole family.

The clever downstairs layout offers incredible flexibility, with its own entrance and separate living area, small dining nook or dedicated work-from-home space, plus a large fourth bedroom, with its own private modern tiled bathroom, also featuring an oversized shower, laundry area and a separate toilet. This level is perfect for teenagers or adult children seeking independence or lends to multigenerational living. It is the versatile floor plan that offers the separation of living spaces that modern families dream of but rarely find.

Behind the electric gate and within the partially fenced property is a carport right at the front door, with another off-street carpark, plus the bonus of further secure off-street parking for more cars, the boat or motorhome on the other side of the section, making this property the overall package.

Located within the sought-after zones for Verrans Primary, Birkdale Intermediate and Birkenhead College, and surrounded by reserves, walkways, playgrounds and family-friendly amenities, this home offers a wonderful lifestyle in one of Birkdale's most loved communities.

Spacious, stylish and full of heart, it's a place your family will be proud to call home. Better Call Paul or Fleur today!

Auction: 4:00pm, Wednesday 25th March 2026 In Rooms, Ray White Glenfield, Glenfield Mall (unless sold prior). You can watch the auction live here rwcarpenterrealty.co.nz...

Sun 8th Mar 12:00pm ~ 12:30pm

Check out whether you can get fibre internet
Meet your new neighbours on Neighbourly