Ray White Beach Haven

Ray White provides a broad range of real estate services from selling your property to property management. Visit our website to see over 12,000 properties on display.

We are a family owned business. When you choose Ray White, you are choosing over 100 years of experience and a name you can trust. We guarantee it!

Contact us to find out how Ray White can help you when it comes to property.

Ray White Beach Haven
Carpenter Realty Ltd Licensed (REAA 2008)

Real Estate Agents

Ray White Beach Haven
Ray White Beach Haven
350 Rangatira Road
Beach Haven
Auckland 0626
Listing #:
GLF32165
Listed:
2 days ago

Set Sale Date

Renovated, Private Single-Level Sanctuary

34 Simon Ellice Drive, Glenfield, North Shore City
Residential House
bedroom
2 Bedrooms
bathroom
1 Bathroom
carparkgarage
1 Car Garage
About this property
Step into a world of modern calm and contemporary class with this renovated brick beauty. Designed for those who value both style and substance, this single-level home has a neutral colour palette, offering a sophisticated sanctuary that feels miles away from the hustle and bustle. Whether you are a professional seeking a chic and cosy retreat, a downsizer looking for single-level safety, or a savvy investor hunting for a quality asset, this property delivers on every front.

The heart of the home centres on seamless indoor-outdoor flow, where the open-plan living areas transition effortlessly to an expansive private patio. This covered outdoor area allows you to entertain family and friends in all seasons with roller blinds on either side, while overlooking your own slice of paradise - a lush, established garden with a distinct sub-tropical vibe. Because the section is fully fenced, you can enjoy this tranquil setting with a complete sense of security and seclusion.

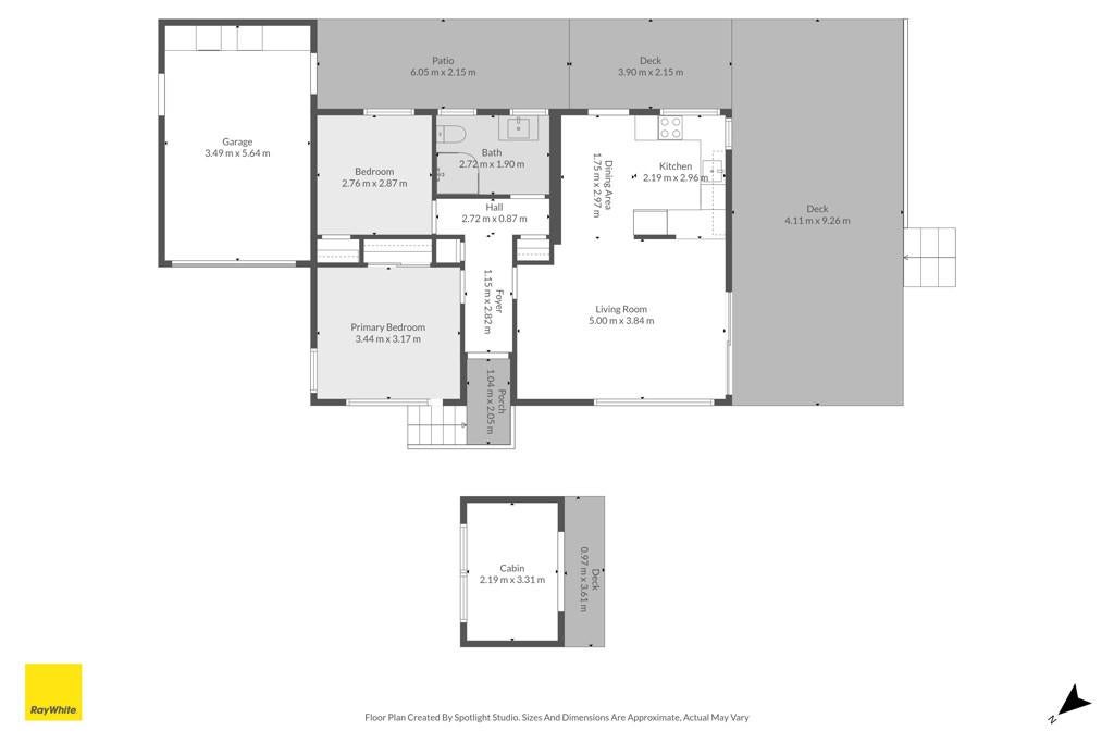
Year-round comfort is a certainty here, with two heat pumps for instant climate control and an HRV system ensuring a dry, healthy environment throughout the seasons. Accommodations include two spacious bedrooms serviced by a modern and functional bathroom. Adding great value to the floor plan is a separate, versatile cabin - it's the ideal solution for a dedicated work-from-home office or a creative hobby space.

Solid and dependable brick construction provides peace of mind, while your own separate driveway leads to a secure single garage. This is more than just a house - it is a lifestyle of quiet luxury, total privacy, and absolute convenience.

Just a short stroll away is the local Bayview Primary school. The nearby Aunty cafe offers the perfect spot to grab your morning coffee, and the surrounding reserves provide endless opportunities to escape for a peaceful walk to declutter the mind and explore nature mid-week or on weekends. With local amenities close at hand and a welcoming neighbourhood feel, this home is ready to embrace its next owners and create new memories for years to come.

Better Call Paul…or Fleur today, as this beauty will not be on the market for long!

Set deadline Sale closes: 12pm Thursday 26th March 2026 (unless sold prior)

Sun 8th Mar 11:00am ~ 11:30am

Check out whether you can get fibre internet
Meet your new neighbours on Neighbourly