Ray White Whitianga

Real Estate Agents

Ray White Whitianga
Ray White Whitianga
22 Monk Street
Whitianga 3510
Listing #:
WTI30514
Listed:
1 day ago

Asking price $1,495,000

BUSH, PRIVACY & STUNNING SEA VIEWS

100 Kaipapaka Row, Te Rerenga, Thames
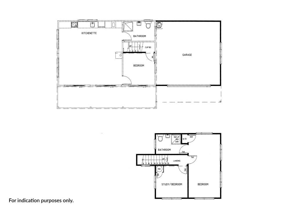
Other
bedroom
3 Bedrooms
bathroom
2 Bathrooms
carparkgarage
2 Car Garages
floorarea
128m2 Floor Area
landarea
5.1 Hectares Land Area
About this property
Looking for a beautiful, peaceful and private getaway or permanent lifestyle change surrounded by birdsong, native bush and gorgeous sea views? Look no further than this stunning 5.18ha (more or less) property located close to Whangapoua Beach. A gorgeous, beautifully maintained, 3 bedroom, 2 bathroom double garage home with wood burning fireplace for cosy nights in. The pergola with outdoor fireplace is just the place to relax and enjoy a barbeque while taking in the everchanging stunning views across Whangapoua Harbour to Matarangi Beach and Great Mercury Island. Covenants don't allow for cats or dogs here to enhance birdlife - check out the great work of the Mana Manu Trust here: www.manamanu.org.nz... Five minutes from Whangapoua and less than 20 minutes to Coromandel Town, this property with its location and breathtaking views is one you need to secure for generations to come. Contact your Matarangi based salesperson for more details or viewing Louise Bradley 0273481700.
Check out whether you can get fibre internet
Meet your new neighbours on Neighbourly